Woning Kamervoort 15 Angeren

Kamervoort 15, 6687LB Angeren

Ontvang updates voor Verspreide huizen Angeren

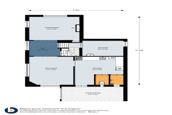
Het adres van deze woning uit 1922 is Kamervoort 15 te Angeren. Het pand heeft 4 kamers kamers waarvan 3 slaapkamers. De geschatte waarde van deze woning is € 225.000.

Bekijk alle woningen in Verspreide huizen Angeren

Gegevens van Eengezinswoning, 2-onder-1-kapwoning

Bouwjaar
1922
Geschatte waarde
€ 225.000
Oppervlakte
0 m2
Inhoud
325 m3
Aantal kamers
4 kamers
Slaapkamers
3
Badkamers
1 badkamer en 1 apart toilet
Soort bouw
Bestaande bouw
Eigendomssituatie
Volle eigendom
Ligging
In woonwijk, vrij uitzicht en open ligging
Tuin
Achtertuin, voortuin en zijtuin
Achtertuin
480 m² (40m diep en 12m breed)

Voorzieningen in de buurt

Boodschappen1,3 km
Grote supermarkt1,3 km
Cafetaria1,2 km
Restaurant2,0 km
Huisarts2,2 km
Ziekenhuis8,0 km
Kinderdagverblijf1,3 km
BSO1,3 km
Alle voorzieningen in Verspreide huizen Angeren

Binnenkijken bij Kamervoort 15 te Angeren

Meer meldingen in deze omgeving

112 melding
Donderdag 12-3-2026 om 08:14
Nijverheidstraat, 6681LN Bemmel

112 melding
Donderdag 12-3-2026 om 08:14
Nijverheidstraat, 6681LN Bemmel

Binnenkijken bij
Maandag 9-3-2026
Nije Hof 1, 6687EH Angeren

Nieuw bedrijf
Maart 2026
Nijverheidstraat 65, 6681LN Bemmel

Faillissement
Zaterdag 28-2-2026
Nijverheidstraat 39d, 6681LN Bemmel

112 melding
Donderdag 22-1-2026 om 08:54
Nijverheidstraat, 6681LN Bemmel

112 melding
Donderdag 22-1-2026 om 08:53
Nijverheidstraat, 6681LN Bemmel

112 melding
Donderdag 22-1-2026 om 08:53
Nijverheidstraat, 6681LN Bemmel

Direct een e-mail ontvangen bij nieuwe meldingen in deze regio?

Meld je dan GRATIS aan voor de Oozo Alert service voor Verspreide huizen Angeren

Instellen

Meer nieuws in Verspreide huizen Angeren

Weten hoe eenvoudig het is om af te vallen? Zonder pillen en smeersels en zonder je in het zweet te werken!
Kijk op eenvoudig-afvallen.nl

© 2012 - 2026 OOZO.nl - info@oozo.nl - Gegevens verwijderen? | Disclaimer | Privacy statement