Woning Julianastraat 11 Huissen

Julianastraat 11, 6851KJ Huissen

Ontvang updates voor Uitbreiding Stad Huissen

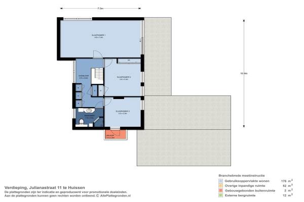
Het adres van deze woning is Julianastraat 11 te Huissen. Het pand heeft een oppervlakte van 176m² en een perceeloppervlakte van 804m² en heeft 5 kamers kamers waarvan 3 slaapkamers. De geschatte waarde van deze woning is € 499.000.

Bekijk alle woningen in Uitbreiding Stad Huissen

Gegevens van Eengezinswoning, vrijstaande woning

Geschatte waarde
€ 499.000
Oppervlakte
176 m2
Inhoud
440 m3
Aantal kamers
5 kamers
Slaapkamers
3
Badkamers
1 badkamer en 1 apart toilet
Soort bouw
Bestaande bouw
Eigendomssituatie
Volle eigendom
Ligging
Aan rustige weg en in woonwijk
Tuin
Achtertuin en voortuin
Achtertuin
495 m² (33m diep en 15m breed)

Voorzieningen in de buurt

Boodschappen0,6 km
Grote supermarkt0,8 km
Cafetaria0,5 km
Restaurant0,4 km
Huisarts0,6 km
Ziekenhuis5,1 km
Kinderdagverblijf0,5 km
BSO0,5 km
Alle voorzieningen in Uitbreiding Stad Huissen

Binnenkijken bij Julianastraat 11 te Huissen

Meer meldingen in deze omgeving

112 melding
Dinsdag 27-1-2026 om 20:26
Doormanstraat, Huissen

Binnenkijken bij
Zondag 25-1-2026
Willem Alexanderhof 5, 6851LB Huissen

Binnenkijken bij
Zondag 25-1-2026
Muntstraat 15, 6851JW Huissen

Binnenkijken bij
Donderdag 22-1-2026
Bredestraat 81, 6851JN Huissen

Nieuw bedrijf
Januari 2026
Koperslagerstraat 22, 6851CJ Huissen

Nieuw bedrijf
Januari 2026
Frankentaler 31, 6851VP Huissen

Nieuw bedrijf
Januari 2026
Wijngaarden 7, 6851MA Huissen

Nieuw bedrijf
Januari 2026
Huismanstraat 27b, 6851GS Huissen

Direct een e-mail ontvangen bij nieuwe meldingen in deze regio?

Meld je dan GRATIS aan voor de Oozo Alert service voor Uitbreiding Stad Huissen

Instellen

Meer nieuws in Uitbreiding Stad Huissen

Weten hoe eenvoudig het is om af te vallen? Zonder pillen en smeersels en zonder je in het zweet te werken!
Kijk op eenvoudig-afvallen.nl

© 2012 - 2026 OOZO.nl - info@oozo.nl - Gegevens verwijderen? | Disclaimer | Privacy statement