Woning Stuurboord 18 Huissen

Stuurboord 18, 6852CD Huissen

Ontvang updates voor Zilverkamp

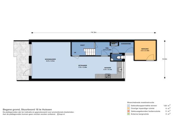
Het adres van deze woning uit 1976 is Stuurboord 18 te Huissen. Het pand heeft een oppervlakte van 128m² en een perceeloppervlakte van 144m² en heeft 6 kamers kamers waarvan 5 slaapkamers. De geschatte waarde van deze woning is € 229.500.

Bekijk alle woningen in Zilverkamp

Gegevens van Eengezinswoning, tussenwoning

Bouwjaar
1976
Geschatte waarde
€ 229.500
Oppervlakte
128 m2
Inhoud
380 m3
Aantal kamers
6 kamers
Slaapkamers
5
Badkamers
1 badkamer en 1 apart toilet
Soort bouw
Bestaande bouw
Eigendomssituatie
Volle eigendom
Ligging
In woonwijk en vrij uitzicht
Tuin
Achtertuin
Achtertuin
45 m² (9m diep en 5m breed)

Voorzieningen in de buurt

Boodschappen0,8 km
Grote supermarkt0,8 km
Cafetaria0,8 km
Restaurant0,8 km
Huisarts0,9 km
Ziekenhuis4,2 km
Kinderdagverblijf0,7 km
BSO0,8 km
Alle voorzieningen in Zilverkamp

Binnenkijken bij Stuurboord 18 te Huissen

Meer meldingen in deze omgeving

112 melding
Vrijdag 19-12-2025 om 11:57
Holthuizerdreef, Huissen

Binnenkijken bij
Donderdag 11-12-2025
Reigerbos 26, 6852LR Huissen

112 melding
Zondag 7-12-2025 om 21:52
Uivernest, Huissen

Nieuw bedrijf
December 2025
Biezen 21, 6852LL Huissen

Nieuw bedrijf
December 2025
Holthuizerdreef 39, 6852JH Huissen

Binnenkijken bij
Vrijdag 28-11-2025
Dullert 46, 6852ME Huissen

Binnenkijken bij
Vrijdag 28-11-2025
Bessenmaat 20, 6852LJ Huissen

Nieuw bedrijf
November 2025
Schelf 2, 6852ET Huissen

Direct een e-mail ontvangen bij nieuwe meldingen in deze regio?

Meld je dan GRATIS aan voor de Oozo Alert service voor Zilverkamp

Instellen

Meer nieuws in Zilverkamp

Weten hoe eenvoudig het is om af te vallen? Zonder pillen en smeersels en zonder je in het zweet te werken!
Kijk op eenvoudig-afvallen.nl

© 2012 - 2025 OOZO.nl - info@oozo.nl - Gegevens verwijderen? | Disclaimer | Privacy statement