Woning Oudeweg 53 Linne

Oudeweg 53, 6067BX Linne

Ontvang updates voor Linne

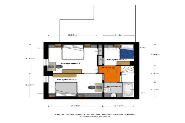
Het adres van deze woning uit 1946 is Oudeweg 53 te Linne. Het pand heeft een oppervlakte van 85m² en een perceeloppervlakte van 492m² en heeft 10 kamers kamers waarvan 3 slaapkamers. De geschatte waarde van deze woning is € 175.000.

Bekijk alle woningen in Linne

Gegevens van Eengezinswoning, halfvrijstaande woning

Bouwjaar
1946
Geschatte waarde
€ 175.000
Oppervlakte
85 m2
Inhoud
350 m3
Aantal kamers
10 kamers
Slaapkamers
3
Badkamers
1 apart toilet
Soort bouw
Bestaande bouw
Eigendomssituatie
Volle eigendom
Ligging
In woonwijk
Tuin
Achtertuin en voortuin
Achtertuin
338 m² (45m diep en 7,5m breed)

Voorzieningen in de buurt

Boodschappen0,6 km
Grote supermarkt0,8 km
Cafetaria0,6 km
Restaurant0,7 km
Huisarts0,7 km
Ziekenhuis6,4 km
Kinderdagverblijf0,7 km
BSO0,7 km
Alle voorzieningen in Linne

Binnenkijken bij Oudeweg 53 te Linne

Meer meldingen in deze omgeving

112 melding
Dinsdag 30-12-2025 om 08:21
Graaf van Wassenbergstraat, 6067ED Linne

112 melding
Dinsdag 30-12-2025 om 08:10
Mosberg, 6067HC Linne

112 melding
Maandag 29-12-2025 om 10:03
Majoor Huthstraat, 6067HA Linne

112 melding
Zondag 28-12-2025 om 11:59
Majoor Huthstraat, 6067HA Linne

112 melding
Zaterdag 27-12-2025 om 15:56
Majoor Huthstraat, 6067HB Linne

112 melding
Zaterdag 27-12-2025 om 12:40
Windhaag, 6067JC Linne

112 melding
Zaterdag 27-12-2025 om 12:40
Windhaag, 6067JC Linne

Nieuw bedrijf
December 2025
Mergelweg 19, 6067EK Linne

Direct een e-mail ontvangen bij nieuwe meldingen in deze regio?

Meld je dan GRATIS aan voor de Oozo Alert service voor Linne

Instellen

Meer nieuws in Linne

Weten hoe eenvoudig het is om af te vallen? Zonder pillen en smeersels en zonder je in het zweet te werken!
Kijk op eenvoudig-afvallen.nl

© 2012 - 2025 OOZO.nl - info@oozo.nl - Gegevens verwijderen? | Disclaimer | Privacy statement