Woning Ebenistendreef 113 Maastricht

Ebenistendreef 113, 6216PR Maastricht

Ontvang updates voor Belfort

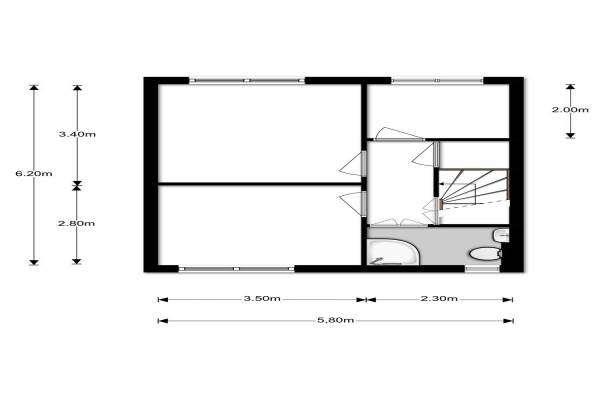
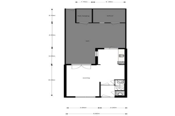
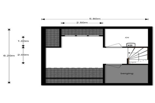
Het adres van deze woning is Ebenistendreef 113 te Maastricht. Het pand heeft een oppervlakte van 95m² en een perceeloppervlakte van 117m² en heeft 5 kamers kamers waarvan 4 slaapkamers. De geschatte waarde van deze woning is € 190.000.

Bekijk alle woningen in Belfort

Gegevens van Eengezinswoning, tussenwoning

Geschatte waarde
€ 190.000
Oppervlakte
95 m2
Inhoud
230 m3
Aantal kamers
5 kamers
Slaapkamers
4
Badkamers
1 badkamer en 1 apart toilet
Soort bouw
Bestaande bouw
Eigendomssituatie
Volle eigendom
Ligging
In woonwijk
Tuin
Achtertuin
Achtertuin
36 m² (6m diep en 6m breed)

Voorzieningen in de buurt

Boodschappen0,4 km
Grote supermarkt0,4 km
Cafetaria0,4 km
Restaurant0,4 km
Huisarts0,7 km
Ziekenhuis1,2 km
Kinderdagverblijf0,4 km
BSO0,4 km
Alle voorzieningen in Belfort

Binnenkijken bij Ebenistendreef 113 te Maastricht

Meer meldingen in deze omgeving

Nieuw bedrijf
December 2025
Haammakersdreef 8, 6216SB Maastricht

Nieuw bedrijf
December 2025
Glazeniersdreef 15, 6216NS Maastricht

Binnenkijken bij
Vrijdag 28-11-2025
Schaliedekkersdreef 84A, 6216RX Maastricht

112 melding
Dinsdag 25-11-2025 om 12:31
Kroesmeestersdreef, 6216PK Maastricht

Binnenkijken bij
Dinsdag 25-11-2025
Printersdreef 26, 6216TB Maastricht

Binnenkijken bij
Vrijdag 21-11-2025
Keurmeestersdreef 109D, 6216EC Maastricht

Nieuw bedrijf
November 2025
Ooftmengersdreef 23C, 6216SJ Maastricht

Binnenkijken bij
Dinsdag 18-11-2025
Passementmakersdreef 2, 6216SE Maastricht

Direct een e-mail ontvangen bij nieuwe meldingen in deze regio?

Meld je dan GRATIS aan voor de Oozo Alert service voor Belfort

Instellen

Meer nieuws in Belfort

Weten hoe eenvoudig het is om af te vallen? Zonder pillen en smeersels en zonder je in het zweet te werken!
Kijk op eenvoudig-afvallen.nl

© 2012 - 2026 OOZO.nl - info@oozo.nl - Gegevens verwijderen? | Disclaimer | Privacy statement