Woning Vulcanushof 57 Maastricht

Vulcanushof 57, 6215RT Maastricht

Ontvang updates voor Daalhof

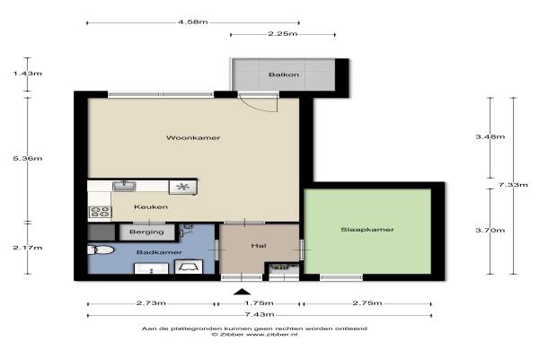
Het adres van deze woning uit 1980 is Vulcanushof 57 te Maastricht. Het pand heeft een oppervlakte van 45m² en heeft 2 kamers kamers waarvan 1 slaapkamers. De geschatte waarde van deze woning is € 110.000.

Bekijk alle woningen in Daalhof

Gegevens van Galerijflat (appartement)

Bouwjaar
1980
Geschatte waarde
€ 110.000
Oppervlakte
45 m2
Inhoud
148 m3
Aantal kamers
2 kamers
Slaapkamers
1
Badkamers
1 badkamer
Soort bouw
Bestaande bouw
Eigendomssituatie
Volle eigendom
Tuin
Zonneterras

Voorzieningen in de buurt

Boodschappen0,5 km
Grote supermarkt0,5 km
Cafetaria0,5 km
Restaurant0,5 km
Huisarts0,5 km
Ziekenhuis2,1 km
Kinderdagverblijf0,8 km
BSO0,6 km
Alle voorzieningen in Daalhof

Binnenkijken bij Vulcanushof 57 te Maastricht

Meer meldingen in deze omgeving

Binnenkijken bij
Zaterdag 21-2-2026
Planetenhof 130C, 6215TZ Maastricht

112 melding
Donderdag 19-2-2026 om 14:27
Palatijnhof, Maastricht

112 melding
Donderdag 19-2-2026 om 14:12
Palatijnhof, Maastricht

112 melding
Donderdag 19-2-2026 om 14:00
Palatijnhof, Maastricht

112 melding
Donderdag 19-2-2026 om 13:59
Palatijnhof, Maastricht

112 melding
Donderdag 19-2-2026 om 13:58
Palatijnhof, Maastricht

112 melding
Donderdag 19-2-2026 om 13:54
Palatijnhof, Maastricht

112 melding
Maandag 16-2-2026 om 13:00
Claudiushof, 6215EZ Maastricht

Direct een e-mail ontvangen bij nieuwe meldingen in deze regio?

Meld je dan GRATIS aan voor de Oozo Alert service voor Daalhof

Instellen

Meer nieuws in Daalhof

Weten hoe eenvoudig het is om af te vallen? Zonder pillen en smeersels en zonder je in het zweet te werken!
Kijk op eenvoudig-afvallen.nl

© 2012 - 2026 OOZO.nl - info@oozo.nl - Gegevens verwijderen? | Disclaimer | Privacy statement