Woning Grannushof 14 Maastricht

Grannushof 14, 6215VG Maastricht

Ontvang updates voor Daalhof

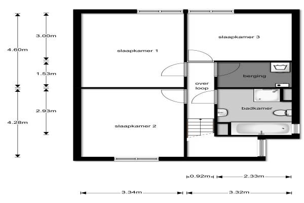
Het adres van deze woning uit 1997 is Grannushof 14 te Maastricht. Het pand heeft een oppervlakte van 115m² en een perceeloppervlakte van 159m² en heeft 7 kamers kamers waarvan 3 slaapkamers. De geschatte waarde van deze woning is € 249.000.

Bekijk alle woningen in Daalhof

Gegevens van Eengezinswoning, halfvrijstaande woning

Bouwjaar
1997
Geschatte waarde
€ 249.000
Oppervlakte
115 m2
Inhoud
399 m3
Aantal kamers
7 kamers
Slaapkamers
3
Badkamers
1 badkamer en 1 apart toilet
Soort bouw
Bestaande bouw
Eigendomssituatie
Volle eigendom
Ligging
In woonwijk, open ligging en vrij uitzicht
Tuin
Achtertuin, voortuin en zijtuin
Achtertuin
36 m² (5,17m diep en 7m breed)

Voorzieningen in de buurt

Boodschappen0,5 km
Grote supermarkt0,5 km
Cafetaria0,5 km
Restaurant0,5 km
Huisarts0,5 km
Ziekenhuis2,1 km
Kinderdagverblijf0,8 km
BSO0,6 km
Alle voorzieningen in Daalhof

Binnenkijken bij Grannushof 14 te Maastricht

Meer meldingen in deze omgeving

112 melding
Woensdag 17-12-2025 om 18:44
Planetenhof, Maastricht

112 melding
Woensdag 17-12-2025 om 18:43
Planetenhof, Maastricht

Nieuw bedrijf
December 2025
Herculeshof 21D, 6215BD Maastricht

Binnenkijken bij
Woensdag 10-12-2025
Caesarhof 24B, 6215EN Maastricht

Binnenkijken bij
Woensdag 10-12-2025
Romulushof 41, 6215EJ Maastricht

Nieuw bedrijf
December 2025
Apollohof 34, 6215XM Maastricht

Binnenkijken bij
Vrijdag 5-12-2025
Vergiliushof 23A, 6215GH Maastricht

Nieuw bedrijf
December 2025
Viënnahof 20, 6215VJ Maastricht

Direct een e-mail ontvangen bij nieuwe meldingen in deze regio?

Meld je dan GRATIS aan voor de Oozo Alert service voor Daalhof

Instellen

Meer nieuws in Daalhof

Weten hoe eenvoudig het is om af te vallen? Zonder pillen en smeersels en zonder je in het zweet te werken!
Kijk op eenvoudig-afvallen.nl

© 2012 - 2025 OOZO.nl - info@oozo.nl - Gegevens verwijderen? | Disclaimer | Privacy statement