Woning Badweg 46 Meeden

Badweg 46, 9651BV Meeden

Ontvang updates voor Meeden

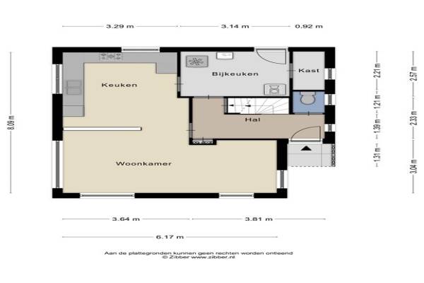
Het adres van deze woning uit 1955 is Badweg 46 te Meeden. Het pand heeft een oppervlakte van 91m² en een perceeloppervlakte van 500m² en heeft 4 kamers kamers waarvan 3 slaapkamers. De geschatte waarde van deze woning is € 255.000.

Bekijk alle woningen in Meeden

Gegevens van Eengezinswoning

Bouwjaar
1955
Geschatte waarde
€ 255.000
Oppervlakte
91 m2
Inhoud
300 m3
Aantal kamers
4 kamers
Slaapkamers
3
Badkamers
1 badkamer en 1 apart toilet
Soort bouw
Bestaande bouw
Eigendomssituatie
Volle eigendom
Ligging
Aan rustige weg en in woonwijk
Tuin
Tuin
Achtertuin
220 m² (22m diep en 10m breed)

Voorzieningen in de buurt

Binnenkijken bij Badweg 46 te Meeden

Meer meldingen in deze omgeving

112 melding
Woensdag 12-11-2025 om 13:50
Burgemeester Venemastraat, Meeden

112 melding
Woensdag 12-11-2025 om 13:48
Burgemeester Venemastraat, Meeden

Binnenkijken bij
Dinsdag 11-11-2025
Hereweg 266, 9651AR Meeden

Binnenkijken bij
Dinsdag 11-11-2025
Hereweg 46, 9651AK Meeden

Binnenkijken bij
Dinsdag 11-11-2025
Vennenweg 1, 9651BP Meeden

Nieuw bedrijf
Oktober 2025
Burgemeester Venemastraat 38, 9651CC Meeden

Binnenkijken bij
Woensdag 29-10-2025
Badweg 34, 9651BT Meeden

Binnenkijken bij
Zondag 19-10-2025
Hereweg 142, 9651AM Meeden

Direct een e-mail ontvangen bij nieuwe meldingen in deze regio?

Meld je dan GRATIS aan voor de Oozo Alert service voor Meeden

Instellen

Meer nieuws in Meeden

Weten hoe eenvoudig het is om af te vallen? Zonder pillen en smeersels en zonder je in het zweet te werken!
Kijk op eenvoudig-afvallen.nl

© 2012 - 2025 OOZO.nl - info@oozo.nl - Gegevens verwijderen? | Disclaimer | Privacy statement