Woning Dorpslaan 20 Nieuw-Lekkerland

Dorpslaan 20, 2957XE Nieuw-Lekkerland

Ontvang updates voor Dorp

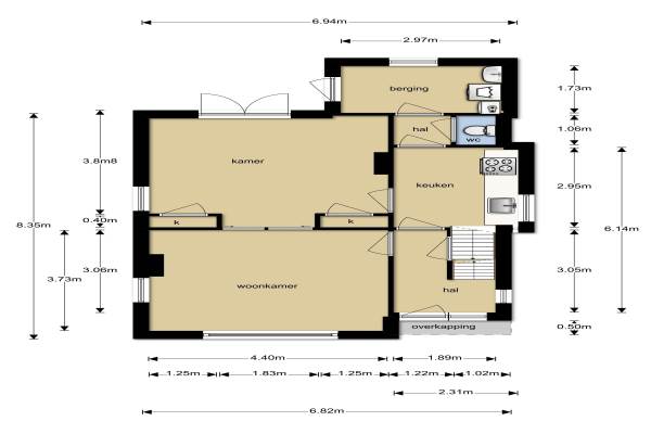
Het adres van deze woning uit 1932 is Dorpslaan 20 te Nieuw-Lekkerland. Het pand heeft een oppervlakte van 111m² en een perceeloppervlakte van 242m² en heeft 4 kamers kamers waarvan 3 slaapkamers. De geschatte waarde van deze woning is € 309.500.

Bekijk alle woningen in Dorp

Gegevens van Herenhuis, vrijstaande woning

Bouwjaar
1932
Geschatte waarde
€ 309.500
Oppervlakte
111 m2
Inhoud
402 m3
Aantal kamers
4 kamers
Slaapkamers
3
Soort bouw
Bestaande bouw
Eigendomssituatie
Volle eigendom
Ligging
Aan water, aan rustige weg, in centrum, in woonwijk, vrij uitzicht en aan vaarwater
Tuin
Tuin rondom

Voorzieningen in de buurt

Binnenkijken bij Dorpslaan 20 te Nieuw-Lekkerland

Meer meldingen in deze omgeving

112 melding
Dinsdag 14-10-2025 om 09:00
Watervluchtmolen, 2957JC Nieuw-Lekkerland

112 melding
Zondag 12-10-2025 om 00:40
Kleijburgplein, 2957AT Nieuw-Lekkerland

112 melding
Zaterdag 11-10-2025 om 13:07
Segboerstraat, 2957BE Nieuw-Lekkerland

112 melding
Vrijdag 10-10-2025 om 21:14
Bovenkruier, 2957XJ Nieuw-Lekkerland

112 melding
Vrijdag 10-10-2025 om 20:53
Dorpslaan, 2957XA Nieuw-Lekkerland

Binnenkijken bij
Donderdag 9-10-2025
Floris V-straat 20, 2957AK Nieuw-Lekkerland

Binnenkijken bij
Donderdag 9-10-2025
Watervluchtmolen 30, 2957JB Nieuw-Lekkerland

Binnenkijken bij
Donderdag 9-10-2025
Meester Bouwmanstraat 9, 2957AV Nieuw-Lekkerland

Direct een e-mail ontvangen bij nieuwe meldingen in deze regio?

Meld je dan GRATIS aan voor de Oozo Alert service voor Dorp

Instellen

Meer nieuws in Dorp

Weten hoe eenvoudig het is om af te vallen? Zonder pillen en smeersels en zonder je in het zweet te werken!
Kijk op eenvoudig-afvallen.nl

© 2012 - 2025 OOZO.nl - info@oozo.nl - Gegevens verwijderen? | Disclaimer | Privacy statement