Woning Noordermeerweg 45 Rutten

Noordermeerweg 45, 8313PV Rutten

Ontvang updates voor Rutten-landelijk gebied

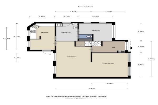
Het adres van deze woning uit 1955 is Noordermeerweg 45 te Rutten. Het pand heeft een oppervlakte van 115m² en een perceeloppervlakte van 1150m² en heeft 5 kamers kamers waarvan 3 slaapkamers. De geschatte waarde van deze woning is € 212.500.

Bekijk alle woningen in Rutten-landelijk gebied

Gegevens van Eengezinswoning, hoekwoning

Bouwjaar
1955
Geschatte waarde
€ 212.500
Oppervlakte
115 m2
Inhoud
300 m3
Aantal kamers
5 kamers
Slaapkamers
3
Badkamers
1 badkamer en 1 apart toilet
Soort bouw
Bestaande bouw
Eigendomssituatie
Volle eigendom
Ligging
Aan rustige weg, vrij uitzicht, open ligging, buiten bebouwde kom en landelijk gelegen
Tuin
Achtertuin, voortuin, zijtuin en zonneterras
Achtertuin
270 m² (15m diep en 18m breed)

Voorzieningen in de buurt

Boodschappen4,9 km
Grote supermarkt4,2 km
Cafetaria2,8 km
Restaurant4,7 km
Huisarts4,7 km
Ziekenhuis6,8 km
Kinderdagverblijf2,8 km
BSO3,2 km
Alle voorzieningen in Rutten-landelijk gebied

Binnenkijken bij Noordermeerweg 45 te Rutten

Meer meldingen in deze omgeving

Binnenkijken bij
Vrijdag 26-12-2025
Noordermeerweg 49A, 8313PW Rutten

112 melding
Woensdag 17-12-2025 om 15:14
Gemaalweg, Rutten

112 melding
Woensdag 17-12-2025 om 15:14
Gemaalweg, Rutten

112 melding
Dinsdag 16-12-2025 om 16:48
Noordermeerweg, Rutten

Nieuw bedrijf
December 2025
Hopweg 46, 8313RK Rutten

Nieuw bedrijf
December 2025
Hopweg 44, 8313RK Rutten

Nieuw bedrijf
December 2025
Noordermeerweg 49C, 8313PW Rutten

Nieuw bedrijf
December 2025
Noordermeerweg 49C, 8313PW Rutten

Direct een e-mail ontvangen bij nieuwe meldingen in deze regio?

Meld je dan GRATIS aan voor de Oozo Alert service voor Rutten-landelijk gebied

Instellen

Meer nieuws in Rutten-landelijk gebied

Weten hoe eenvoudig het is om af te vallen? Zonder pillen en smeersels en zonder je in het zweet te werken!
Kijk op eenvoudig-afvallen.nl

© 2012 - 2026 OOZO.nl - info@oozo.nl - Gegevens verwijderen? | Disclaimer | Privacy statement