Woning Vincent van Goghlaan 7 Oosterhout Nb

Vincent van Goghlaan 7, 4907PE Oosterhout Nb

Ontvang updates voor Schildersbuurt

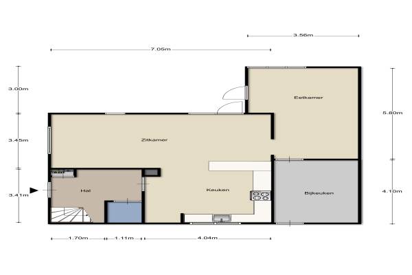
Het adres van deze woning uit 1982 is Vincent van Goghlaan 7 te Oosterhout Nb. Het pand heeft een oppervlakte van 115m² en een perceeloppervlakte van 340m² en heeft 6 kamers kamers waarvan 3 slaapkamers. De geschatte waarde van deze woning is € 324.500.

Bekijk alle woningen in Schildersbuurt

Gegevens van Eengezinswoning, vrijstaande woning

Bouwjaar
1982
Geschatte waarde
€ 324.500
Oppervlakte
115 m2
Inhoud
400 m3
Aantal kamers
6 kamers
Slaapkamers
3
Badkamers
1 apart toilet
Soort bouw
Bestaande bouw
Ligging
Aan rustige weg en in woonwijk
Tuin
Achtertuin, voortuin en zijtuin
Achtertuin
154 m² (11m diep en 14m breed)

Voorzieningen in de buurt

Boodschappen1,1 km
Grote supermarkt1,1 km
Cafetaria1,1 km
Restaurant1,1 km
Huisarts1,6 km
Ziekenhuis1,6 km
Kinderdagverblijf0,4 km
BSO0,6 km
Alle voorzieningen in Schildersbuurt

Binnenkijken bij Vincent van Goghlaan 7 te Oosterhout Nb

Meer meldingen in deze omgeving

Binnenkijken bij
Donderdag 11-12-2025
Sluijtershof 2, 4907PD Oosterhout (NB)

Nieuw bedrijf
December 2025
Jan van Eijckhof 38, 4907MB Oosterhout

Binnenkijken bij
Dinsdag 9-12-2025
Piet Mondriaanstraat 2, 4907NX Oosterhout (NB)

Binnenkijken bij
Maandag 8-12-2025
Jan van Eijckhof 8, 4907MB Oosterhout (NB)

Binnenkijken bij
Zaterdag 29-11-2025
Remy van Haanenstraat 16, 4907NR Oosterhout (NB)

Nieuw bedrijf
November 2025
Jan Tooropstraat 15, 4907PB Oosterhout

Nieuw bedrijf
November 2025
Jeroen Boschstraat 21, 4907MP Oosterhout

Binnenkijken bij
Vrijdag 14-11-2025
Rembrandtlaan 63, 4907NM Oosterhout (NB)

Direct een e-mail ontvangen bij nieuwe meldingen in deze regio?

Meld je dan GRATIS aan voor de Oozo Alert service voor Schildersbuurt

Instellen

Meer nieuws in Schildersbuurt

Weten hoe eenvoudig het is om af te vallen? Zonder pillen en smeersels en zonder je in het zweet te werken!
Kijk op eenvoudig-afvallen.nl

© 2012 - 2025 OOZO.nl - info@oozo.nl - Gegevens verwijderen? | Disclaimer | Privacy statement