Woning Oude Wei 63 Oss

Oude Wei 63, 5345KG Oss

Ontvang updates voor Lockaert

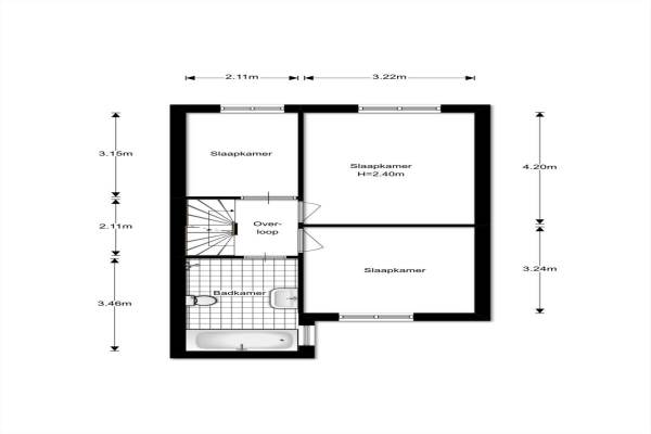
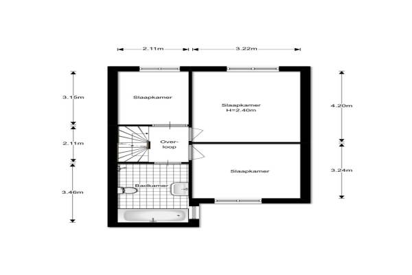
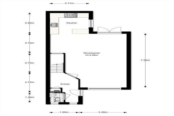
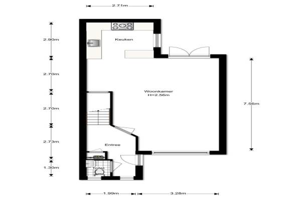
Het adres van deze woning uit 1982 is Oude Wei 63 te Oss. Het pand heeft een oppervlakte van 113m² en een perceeloppervlakte van 147m² en heeft 4 kamers kamers waarvan 3 slaapkamers. De geschatte waarde van deze woning is € 229.500.

Bekijk alle woningen in Lockaert

Gegevens van Eengezinswoning, tussenwoning

Bouwjaar
1982
Geschatte waarde
€ 229.500
Oppervlakte
113 m2
Inhoud
350 m3
Aantal kamers
4 kamers
Slaapkamers
3
Soort bouw
Bestaande bouw
Ligging
Vrij uitzicht en in woonwijk
Tuin
Achtertuin en voortuin
Achtertuin
20 m² (4m diep en 5m breed)

Voorzieningen in de buurt

Boodschappen0,7 km
Grote supermarkt0,7 km
Cafetaria0,7 km
Restaurant1,1 km
Huisarts1,0 km
Ziekenhuis3,0 km
Kinderdagverblijf0,4 km
BSO0,3 km
Alle voorzieningen in Lockaert

Binnenkijken bij Oude Wei 63 te Oss

Meer meldingen in deze omgeving

112 melding
Donderdag 12-2-2026 om 08:56
Oude Wei, 5345KH Oss

112 melding
Donderdag 12-2-2026 om 08:52
Oude Wei, 5345KH Oss

112 melding
Donderdag 12-2-2026 om 08:52
Oude Wei, 5345KH Oss

Binnenkijken bij
Zaterdag 7-2-2026
Gewandeweg 4, 5345HN Oss

Binnenkijken bij
Zaterdag 7-2-2026
Jeneverbes 49, 5345JB Oss

Binnenkijken bij
Donderdag 5-2-2026
Gewandeweg 30, 5345HN Oss

Binnenkijken bij
Zondag 25-1-2026
Jeneverbes 8, 5345JA Oss

Nieuw bedrijf
Januari 2026
Jeneverbes 159, 5345JB Oss

Direct een e-mail ontvangen bij nieuwe meldingen in deze regio?

Meld je dan GRATIS aan voor de Oozo Alert service voor Lockaert

Instellen

Meer nieuws in Lockaert

Weten hoe eenvoudig het is om af te vallen? Zonder pillen en smeersels en zonder je in het zweet te werken!
Kijk op eenvoudig-afvallen.nl

© 2012 - 2026 OOZO.nl - info@oozo.nl - Gegevens verwijderen? | Disclaimer | Privacy statement