Woning In de Watermolen 26 Duivendrecht

In de Watermolen 26, 1115GC Duivendrecht

Ontvang updates voor Duivendrecht

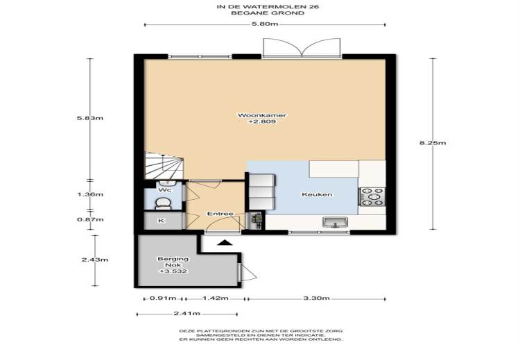
Het adres van deze woning uit 1977 is In de Watermolen 26 te Duivendrecht. Het pand heeft een oppervlakte van 132m² en een perceeloppervlakte van 143m² en heeft 7 kamers kamers waarvan 6 slaapkamers. De geschatte waarde van deze woning is € 495.026.

Bekijk alle woningen in Duivendrecht

Gegevens van Eengezinswoning, hoekwoning

Bouwjaar
1977
Geschatte waarde
€ 495.026
Oppervlakte
132 m2
Inhoud
441 m3
Aantal kamers
7 kamers
Slaapkamers
6
Badkamers
1 badkamer en 1 apart toilet
Soort bouw
Bestaande bouw
Eigendomssituatie
Volle eigendom
Ligging
In woonwijk en vrij uitzicht
Tuin
Achtertuin en voortuin
Achtertuin
68 m² (11,36m diep en 6m breed)

Voorzieningen in de buurt

Boodschappen0,5 km
Grote supermarkt0,5 km
Cafetaria0,5 km
Restaurant0,4 km
Huisarts0,7 km
Ziekenhuis4,6 km
Kinderdagverblijf0,7 km
BSO0,5 km
Alle voorzieningen in Duivendrecht

Binnenkijken bij In de Watermolen 26 te Duivendrecht

Meer meldingen in deze omgeving

112 melding
Maandag 29-12-2025 om 16:59
Lunaweg, Duivendrecht

Nieuw bedrijf
December 2025
Parnassiaveld 160, 1115EN Duivendrecht

Nieuw bedrijf
December 2025
Joop Geesinkweg 601, 1114AB Amsterdam-Duivendrecht

Nieuw bedrijf
December 2025
Joop Geesinkweg 601, 1114AB Amsterdam-Duivendrecht

Nieuw bedrijf
December 2025
In de Houtzaagmolen 59, 1115GG Duivendrecht

Nieuw bedrijf
December 2025
Joop Geesinkweg 901, 1114AB Amsterdam-Duivendrecht

Nieuw bedrijf
December 2025
Joop Geesinkweg 901, 1114AB Amsterdam-Duivendrecht

Nieuw bedrijf
December 2025
Joop Geesinkweg 601, 1114AB Amsterdam-Duivendrecht

Direct een e-mail ontvangen bij nieuwe meldingen in deze regio?

Meld je dan GRATIS aan voor de Oozo Alert service voor Duivendrecht

Instellen

Meer nieuws in Duivendrecht

Weten hoe eenvoudig het is om af te vallen? Zonder pillen en smeersels en zonder je in het zweet te werken!
Kijk op eenvoudig-afvallen.nl

© 2012 - 2025 OOZO.nl - info@oozo.nl - Gegevens verwijderen? | Disclaimer | Privacy statement