Woning Kloosterstraat 70 Duivendrecht

Kloosterstraat 70, 1115BM Duivendrecht

Ontvang updates voor Duivendrecht

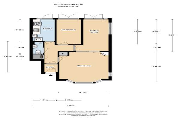
Het adres van deze woning uit 1939 is Kloosterstraat 70 te Duivendrecht. Het pand heeft een oppervlakte van 57m² en heeft 3 kamers kamers waarvan 1 slaapkamers. De geschatte waarde van deze woning is € 225.000.

Bekijk alle woningen in Duivendrecht

Gegevens van Benedenwoning (appartement)

Bouwjaar
1939
Geschatte waarde
€ 225.000
Oppervlakte
57 m2
Inhoud
212 m3
Aantal kamers
3 kamers
Slaapkamers
1
Badkamers
1 badkamer
Soort bouw
Bestaande bouw
Eigendomssituatie
Volle eigendom
Ligging
Aan rustige weg, in woonwijk, vrij uitzicht en beschutte ligging
Tuin
Achtertuin
Achtertuin
44 m² (7m diep en 6,22m breed)

Voorzieningen in de buurt

Boodschappen0,5 km
Grote supermarkt0,5 km
Cafetaria0,5 km
Restaurant0,4 km
Huisarts0,7 km
Ziekenhuis4,6 km
Kinderdagverblijf0,7 km
BSO0,5 km
Alle voorzieningen in Duivendrecht

Binnenkijken bij Kloosterstraat 70 te Duivendrecht

Meer meldingen in deze omgeving

Nieuw bedrijf
November 2025
In de Korenmolen 11, 1115GN Duivendrecht

Nieuw bedrijf
November 2025
Joop Geesinkweg 201, 1114AB Amsterdam-Duivendrecht

Nieuw bedrijf
November 2025
Rijksstraatweg 102, 1115AV Duivendrecht

Nieuw bedrijf
November 2025
Joop Geesinkweg 901, 1114AB Amsterdam-Duivendrecht

Nieuw bedrijf
November 2025
Joop Geesinkweg 201, 1114AB Amsterdam-Duivendrecht

Faillissement
Maandag 17-11-2025
Joop Geesinkweg 201, 1114AB Amsterdam-Duivendrecht

112 melding
Zondag 16-11-2025 om 15:36
Neptunus, Duivendrecht

Binnenkijken bij
Zondag 16-11-2025
Parnassiaveld 35, 1115ED Duivendrecht

Direct een e-mail ontvangen bij nieuwe meldingen in deze regio?

Meld je dan GRATIS aan voor de Oozo Alert service voor Duivendrecht

Instellen

Meer nieuws in Duivendrecht

Weten hoe eenvoudig het is om af te vallen? Zonder pillen en smeersels en zonder je in het zweet te werken!
Kijk op eenvoudig-afvallen.nl

© 2012 - 2025 OOZO.nl - info@oozo.nl - Gegevens verwijderen? | Disclaimer | Privacy statement