Woning Hondsdrafstraat 60 Purmerend

Hondsdrafstraat 60, 1441PD Purmerend

Ontvang updates voor Gors-Noord

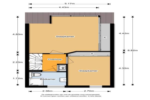
Het adres van deze woning uit 1982 is Hondsdrafstraat 60 te Purmerend. Het pand heeft een oppervlakte van 111m² en een perceeloppervlakte van 151m² en heeft 4 kamers kamers waarvan 3 slaapkamers. De geschatte waarde van deze woning is € 250.000.

Bekijk alle woningen in Gors-Noord

Gegevens van Eengezinswoning, tussenwoning

Bouwjaar
1982
Geschatte waarde
€ 250.000
Oppervlakte
111 m2
Inhoud
385 m3
Aantal kamers
4 kamers
Slaapkamers
3
Badkamers
1 badkamer en 1 apart toilet
Soort bouw
Bestaande bouw
Eigendomssituatie
Volle eigendom
Ligging
In woonwijk
Tuin
Achtertuin
Achtertuin
83 m² (15m diep en 5,5m breed)

Voorzieningen in de buurt

Boodschappen0,7 km
Grote supermarkt0,7 km
Cafetaria0,7 km
Restaurant1,4 km
Huisarts0,7 km
Ziekenhuis0,8 km
Kinderdagverblijf0,7 km
BSO0,9 km
Alle voorzieningen in Gors-Noord

Binnenkijken bij Hondsdrafstraat 60 te Purmerend

Meer meldingen in deze omgeving

112 melding
Maandag 10-11-2025 om 23:46
Waterlandlaan, Purmerend

112 melding
Zondag 9-11-2025 om 18:48
Waterlandlaan, Purmerend

112 melding
Zondag 9-11-2025 om 14:08
De Oeverlanden, Purmerend

112 melding
Zaterdag 8-11-2025 om 17:29
Waterlandlaan, Purmerend

112 melding
Zaterdag 8-11-2025 om 07:54
De Oeverlanden, Purmerend

112 melding
Vrijdag 7-11-2025 om 19:23
Veenweidestraat, Purmerend

112 melding
Vrijdag 7-11-2025 om 10:58
Waterlandlaan, Purmerend

112 melding
Vrijdag 7-11-2025 om 10:58
Waterlandlaan, Purmerend

Direct een e-mail ontvangen bij nieuwe meldingen in deze regio?

Meld je dan GRATIS aan voor de Oozo Alert service voor Gors-Noord

Instellen

Meer nieuws in Gors-Noord

Weten hoe eenvoudig het is om af te vallen? Zonder pillen en smeersels en zonder je in het zweet te werken!
Kijk op eenvoudig-afvallen.nl

© 2012 - 2025 OOZO.nl - info@oozo.nl - Gegevens verwijderen? | Disclaimer | Privacy statement