Woning Spaarbekkenkade 10 Purmerend

Spaarbekkenkade 10, 1441WT Purmerend

Ontvang updates voor Gors-Noord

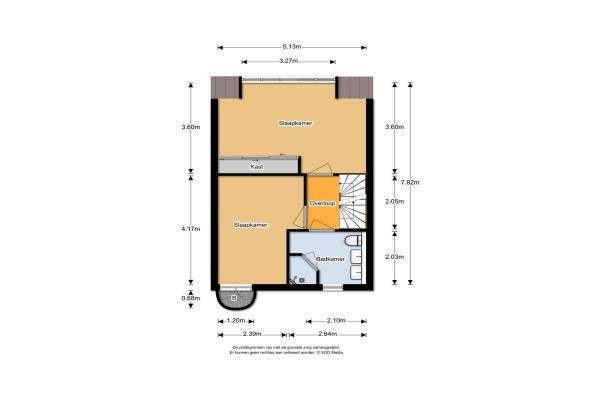
Het adres van deze woning uit 1986 is Spaarbekkenkade 10 te Purmerend. Het pand heeft een oppervlakte van 119m² en een perceeloppervlakte van 129m² en heeft 4 kamers kamers waarvan 3 slaapkamers. De geschatte waarde van deze woning is € 275.000.

Bekijk alle woningen in Gors-Noord

Gegevens van Eengezinswoning, tussenwoning

Bouwjaar
1986
Geschatte waarde
€ 275.000
Oppervlakte
119 m2
Inhoud
405 m3
Aantal kamers
4 kamers
Slaapkamers
3
Badkamers
1 badkamer en 1 apart toilet
Soort bouw
Bestaande bouw
Eigendomssituatie
Gemeentelijk eigendom belast met erfpacht
Ligging
Aan rustige weg en in woonwijk
Tuin
Achtertuin
Achtertuin
71 m² (14,5m diep en 4,92m breed)

Voorzieningen in de buurt

Boodschappen0,7 km
Grote supermarkt0,7 km
Cafetaria0,7 km
Restaurant1,4 km
Huisarts0,7 km
Ziekenhuis0,8 km
Kinderdagverblijf0,7 km
BSO0,9 km
Alle voorzieningen in Gors-Noord

Binnenkijken bij Spaarbekkenkade 10 te Purmerend

Meer meldingen in deze omgeving

112 melding
Zondag 30-11-2025 om 14:15
Waterlandlaan, Purmerend

112 melding
Zondag 30-11-2025 om 04:25
Weegbreestraat, Purmerend

112 melding
Zaterdag 29-11-2025 om 23:04
Waterlandlaan, Purmerend

112 melding
Zaterdag 29-11-2025 om 10:06
Waterlandlaan, Purmerend

112 melding
Zaterdag 29-11-2025 om 06:05
Weegbreestraat, Purmerend

112 melding
Vrijdag 28-11-2025 om 19:50
Waterlandlaan, Purmerend

Nieuw bedrijf
November 2025
Laagveenstraat 58, 1441NE Purmerend

Nieuw bedrijf
November 2025
Baardmosstraat 189, 1441LW Purmerend

Direct een e-mail ontvangen bij nieuwe meldingen in deze regio?

Meld je dan GRATIS aan voor de Oozo Alert service voor Gors-Noord

Instellen

Meer nieuws in Gors-Noord

Weten hoe eenvoudig het is om af te vallen? Zonder pillen en smeersels en zonder je in het zweet te werken!
Kijk op eenvoudig-afvallen.nl

© 2012 - 2025 OOZO.nl - info@oozo.nl - Gegevens verwijderen? | Disclaimer | Privacy statement