Woning De Oeverlanden 156 Purmerend

De Oeverlanden 156, 1441RD Purmerend

Ontvang updates voor Gors-Noord

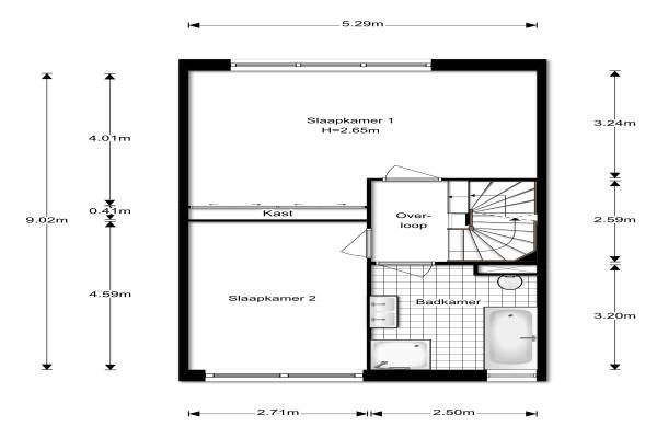
Het adres van deze woning uit 2008 is De Oeverlanden 156 te Purmerend. Het pand heeft een oppervlakte van 143m² en een perceeloppervlakte van 132m² en heeft 5 kamers kamers waarvan 3 slaapkamers. De geschatte waarde van deze woning is € 350.000.

Bekijk alle woningen in Gors-Noord

Gegevens van Eengezinswoning, tussenwoning

Bouwjaar
2008
Geschatte waarde
€ 350.000
Oppervlakte
143 m2
Inhoud
461 m3
Aantal kamers
5 kamers
Slaapkamers
3
Soort bouw
Bestaande bouw
Eigendomssituatie
Volle eigendom
Ligging
Aan rustige weg, in centrum en in woonwijk
Tuin
Achtertuin en voortuin
Achtertuin
36 m² (6,5m diep en 5,5m breed)

Voorzieningen in de buurt

Boodschappen0,7 km
Grote supermarkt0,7 km
Cafetaria0,7 km
Restaurant1,4 km
Huisarts0,7 km
Ziekenhuis0,8 km
Kinderdagverblijf0,7 km
BSO0,9 km
Alle voorzieningen in Gors-Noord

Binnenkijken bij De Oeverlanden 156 te Purmerend

Meer meldingen in deze omgeving

112 melding
Woensdag 3-12-2025 om 21:20
De Oeverlanden, Purmerend

112 melding
Woensdag 3-12-2025 om 21:20
De Oeverlanden, Purmerend

112 melding
Woensdag 3-12-2025 om 18:43
Waterlandlaan, Purmerend

112 melding
Woensdag 3-12-2025 om 05:18
Waterlandlaan, Purmerend

Binnenkijken bij
Woensdag 3-12-2025
De Oeverlanden 299, 1441RE Purmerend

Nieuw bedrijf
December 2025
Markerkade 29, 1441ZC Purmerend

Nieuw bedrijf
December 2025
Weteringstraat 94, 1441LG Purmerend

Nieuw bedrijf
December 2025
Laagveenstraat 58, 1441NE Purmerend

Direct een e-mail ontvangen bij nieuwe meldingen in deze regio?

Meld je dan GRATIS aan voor de Oozo Alert service voor Gors-Noord

Instellen

Meer nieuws in Gors-Noord

Weten hoe eenvoudig het is om af te vallen? Zonder pillen en smeersels en zonder je in het zweet te werken!
Kijk op eenvoudig-afvallen.nl

© 2012 - 2025 OOZO.nl - info@oozo.nl - Gegevens verwijderen? | Disclaimer | Privacy statement