Woning Carbasiusstraat 25 Purmerend

Carbasiusstraat 25, 1447PG Purmerend

Ontvang updates voor Purmer-Zuid/Zuid

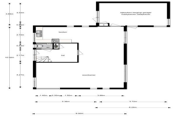
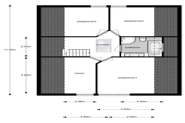
Het adres van deze woning uit 1991 is Carbasiusstraat 25 te Purmerend. Het pand heeft een oppervlakte van 160m² en een perceeloppervlakte van 496m² en heeft 5 kamers kamers waarvan 4 slaapkamers. De geschatte waarde van deze woning is € 550.000.

Bekijk alle woningen in Purmer-Zuid/Zuid

Gegevens van Villa, vrijstaande woning

Bouwjaar
1991
Geschatte waarde
€ 550.000
Oppervlakte
160 m2
Inhoud
550 m3
Aantal kamers
5 kamers
Slaapkamers
4
Badkamers
1 badkamer en 1 apart toilet
Soort bouw
Bestaande bouw
Eigendomssituatie
Gemeentelijke erfpacht
Ligging
Aan rustige weg, in woonwijk en vrij uitzicht
Tuin
Achtertuin, voortuin en zijtuin
Achtertuin
241 m² (13m diep en 18,5m breed)

Voorzieningen in de buurt

Boodschappen1,3 km
Grote supermarkt1,4 km
Cafetaria1,1 km
Restaurant2,7 km
Huisarts0,7 km
Ziekenhuis2,3 km
Kinderdagverblijf0,5 km
BSO1,2 km
Alle voorzieningen in Purmer-Zuid/Zuid

Binnenkijken bij Carbasiusstraat 25 te Purmerend

Meer meldingen in deze omgeving

Binnenkijken bij
Donderdag 9-10-2025
Luitje Broekemastraat 11, 1447GB Purmerend

Binnenkijken bij
Donderdag 9-10-2025
Steve Bikostraat 76, 1447XK Purmerend

Nieuw bedrijf
Oktober 2025
Ruth Firststraat 30, 1447WV Purmerend

Nieuw bedrijf
Oktober 2025
Dom Helder Camarastraat 64, 1447ZK Purmerend

Nieuw bedrijf
Oktober 2025
Bisschop Romerostraat 146, 1447ZZ Purmerend

112 melding
Dinsdag 7-10-2025 om 19:24
Jan Bijhouwerstraat, Purmerend

112 melding
Maandag 6-10-2025 om 09:19
Steve Bikostraat, Purmerend

112 melding
Vrijdag 3-10-2025 om 21:55
Rosa Luxemburgpark, Purmerend

Direct een e-mail ontvangen bij nieuwe meldingen in deze regio?

Meld je dan GRATIS aan voor de Oozo Alert service voor Purmer-Zuid/Zuid

Instellen

Meer nieuws in Purmer-Zuid/Zuid

Weten hoe eenvoudig het is om af te vallen? Zonder pillen en smeersels en zonder je in het zweet te werken!
Kijk op eenvoudig-afvallen.nl

© 2012 - 2025 OOZO.nl - info@oozo.nl - Gegevens verwijderen? | Disclaimer | Privacy statement