Woning Frescobaldistraat 45 Purmerend

Frescobaldistraat 45, 1447NH Purmerend

Ontvang updates voor Purmer-Zuid/Zuid

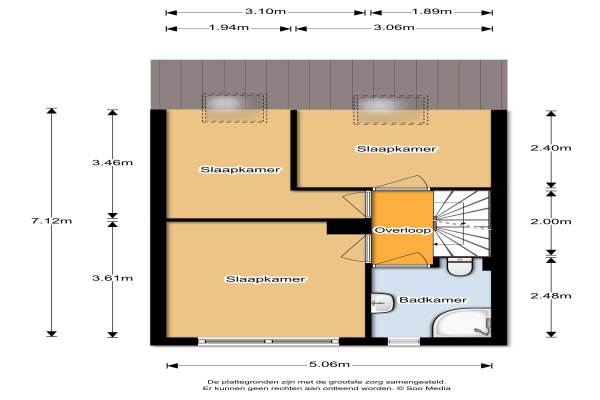
Het adres van deze woning uit 1990 is Frescobaldistraat 45 te Purmerend. Het pand heeft een oppervlakte van 97m² en een perceeloppervlakte van 141m² en heeft 5 kamers kamers waarvan 3 slaapkamers. De geschatte waarde van deze woning is € 285.000.

Bekijk alle woningen in Purmer-Zuid/Zuid

Gegevens van Eengezinswoning, tussenwoning

Bouwjaar
1990
Geschatte waarde
€ 285.000
Oppervlakte
97 m2
Inhoud
330 m3
Aantal kamers
5 kamers
Slaapkamers
3
Badkamers
1 badkamer en 1 apart toilet
Soort bouw
Bestaande bouw
Eigendomssituatie
Eigendom belast met erfpacht
Ligging
Beschutte ligging, in woonwijk en vrij uitzicht
Tuin
Achtertuin en voortuin
Achtertuin
70 m² (14m diep en 5m breed)

Voorzieningen in de buurt

Boodschappen1,3 km
Grote supermarkt1,4 km
Cafetaria1,1 km
Restaurant2,7 km
Huisarts0,7 km
Ziekenhuis2,3 km
Kinderdagverblijf0,5 km
BSO1,2 km
Alle voorzieningen in Purmer-Zuid/Zuid

Binnenkijken bij Frescobaldistraat 45 te Purmerend

Meer meldingen in deze omgeving

112 melding
Zondag 30-11-2025 om 20:23
Andrej Sacharovstraat, Purmerend

112 melding
Zaterdag 29-11-2025 om 19:32
Johan Abersonstraat, Purmerend

112 melding
Zaterdag 29-11-2025 om 08:33
Jurgensstraat, 1447PS Purmerend

Binnenkijken bij
Zaterdag 29-11-2025
Bisschop Romerostraat 37, 1447ZW Purmerend

Binnenkijken bij
Zaterdag 29-11-2025
Monteverdistraat 169, 1447NG Purmerend

Binnenkijken bij
Vrijdag 28-11-2025
Jan Bijhouwerstraat 55, 1447GS Purmerend

112 melding
Donderdag 27-11-2025 om 21:13
Moeder Teresastraat, Purmerend

112 melding
Donderdag 27-11-2025 om 12:34
Persijnlaan, Purmerend

Direct een e-mail ontvangen bij nieuwe meldingen in deze regio?

Meld je dan GRATIS aan voor de Oozo Alert service voor Purmer-Zuid/Zuid

Instellen

Meer nieuws in Purmer-Zuid/Zuid

Weten hoe eenvoudig het is om af te vallen? Zonder pillen en smeersels en zonder je in het zweet te werken!
Kijk op eenvoudig-afvallen.nl

© 2012 - 2025 OOZO.nl - info@oozo.nl - Gegevens verwijderen? | Disclaimer | Privacy statement