Woning Falconstraat 5 Purmerend

Falconstraat 5, 1448WL Purmerend

Ontvang updates voor Amerika

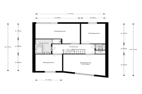
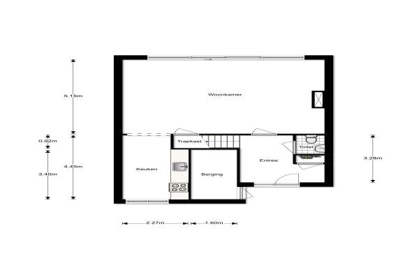
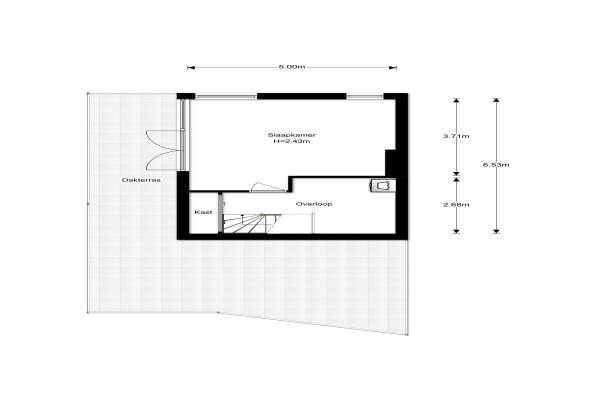
Het adres van deze woning uit 2001 is Falconstraat 5 te Purmerend. Het pand heeft een oppervlakte van 170m² en een perceeloppervlakte van 158m² en heeft 6 kamers kamers waarvan 5 slaapkamers. De geschatte waarde van deze woning is € 395.000.

Bekijk alle woningen in Amerika

Gegevens van Eengezinswoning, tussenwoning

Bouwjaar
2001
Geschatte waarde
€ 395.000
Oppervlakte
170 m2
Inhoud
510 m3
Aantal kamers
6 kamers
Slaapkamers
5
Badkamers
1 apart toilet
Soort bouw
Bestaande bouw
Ligging
Aan water, aan rustige weg en in woonwijk
Tuin
Achtertuin en voortuin
Achtertuin
71 m² (9,5m diep en 7,5m breed)

Voorzieningen in de buurt

Boodschappen1,6 km
Grote supermarkt1,6 km
Cafetaria1,3 km
Restaurant1,6 km
Huisarts1,3 km
Ziekenhuis3,1 km
Kinderdagverblijf0,4 km
BSO0,3 km
Alle voorzieningen in Amerika

Binnenkijken bij Falconstraat 5 te Purmerend

Meer meldingen in deze omgeving

112 melding
Zondag 30-11-2025 om 15:14
Sierra Madrestraat, Purmerend

Nieuw bedrijf
November 2025
Orinocostraat 30, 1448XH Purmerend

Nieuw bedrijf
November 2025
Jamaicastraat 20, 1448TJ Purmerend

Nieuw bedrijf
November 2025
Yukonstraat 1, 1448XG Purmerend

112 melding
Woensdag 26-11-2025 om 18:47
Sierra Madrestraat, Purmerend

112 melding
Maandag 24-11-2025 om 02:16
Bisonstraat, Purmerend

112 melding
Zaterdag 22-11-2025 om 17:42
Bossa Novastraat, Purmerend

Binnenkijken bij
Vrijdag 21-11-2025
Saramaccastraat 25, 1448XJ Purmerend

Direct een e-mail ontvangen bij nieuwe meldingen in deze regio?

Meld je dan GRATIS aan voor de Oozo Alert service voor Amerika

Instellen

Meer nieuws in Amerika

Weten hoe eenvoudig het is om af te vallen? Zonder pillen en smeersels en zonder je in het zweet te werken!
Kijk op eenvoudig-afvallen.nl

© 2012 - 2025 OOZO.nl - info@oozo.nl - Gegevens verwijderen? | Disclaimer | Privacy statement