Woning Vingerhoed 89 Dieren

Vingerhoed 89, 6953BZ Dieren

Ontvang updates voor Dieren-Zuid beneden spoorlijn

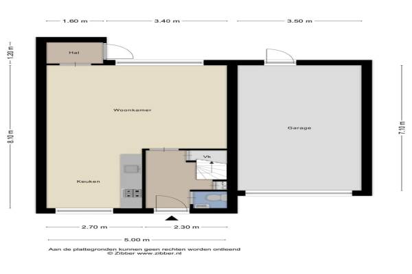
Het adres van deze woning uit 1986 is Vingerhoed 89 te Dieren. Het pand heeft een oppervlakte van 107m² en een perceeloppervlakte van 233m² en heeft 5 kamers kamers waarvan 4 slaapkamers. De geschatte waarde van deze woning is € 395.000.

Bekijk alle woningen in Dieren-Zuid beneden spoorlijn

Gegevens van Eengezinswoning, hoekwoning

Bouwjaar
1986
Geschatte waarde
€ 395.000
Oppervlakte
107 m2
Inhoud
355 m3
Aantal kamers
5 kamers
Slaapkamers
4
Badkamers
1 badkamer en 1 apart toilet
Soort bouw
Bestaande bouw
Eigendomssituatie
Volle eigendom
Ligging
Aan rustige weg, in woonwijk en vrij uitzicht
Tuin
Achtertuin
Achtertuin
106 m² (14,70 meter diep en 7,20 meter breed)

Voorzieningen in de buurt

Boodschappen0,3 km
Grote supermarkt0,9 km
Cafetaria0,3 km
Restaurant0,3 km
Huisarts1,2 km
Ziekenhuis1,2 km
Kinderdagverblijf0,3 km
BSO0,3 km
Alle voorzieningen in Dieren-Zuid beneden spoorlijn

Binnenkijken bij Vingerhoed 89 te Dieren

Meer meldingen in deze omgeving

112 melding
Zaterdag 24-1-2026 om 10:01
Aan 't Veer, 6953BJ Dieren

112 melding
Donderdag 22-1-2026 om 13:34
Hogestraat, 6953AN Dieren

112 melding
Donderdag 22-1-2026 om 09:13
Zuider Parallelweg, 6953DA Dieren

112 melding
Donderdag 22-1-2026 om 09:13
Zuider Parallelweg, 6953DA Dieren

Nieuw bedrijf
Januari 2026
Zutphensestraatweg 4, 6953CK Dieren

112 melding
Woensdag 21-1-2026 om 16:06
Vingerhoed, 6953BZ Dieren

112 melding
Woensdag 21-1-2026 om 12:28
Aan 't Veer, 6953BJ Dieren

112 melding
Woensdag 21-1-2026 om 12:28
Aan 't Veer, 6953BJ Dieren

Direct een e-mail ontvangen bij nieuwe meldingen in deze regio?

Meld je dan GRATIS aan voor de Oozo Alert service voor Dieren-Zuid beneden spoorlijn

Instellen

Meer nieuws in Dieren-Zuid beneden spoorlijn

Weten hoe eenvoudig het is om af te vallen? Zonder pillen en smeersels en zonder je in het zweet te werken!
Kijk op eenvoudig-afvallen.nl

© 2012 - 2026 OOZO.nl - info@oozo.nl - Gegevens verwijderen? | Disclaimer | Privacy statement