Woning Sophiastraat 7 Velp Gld

Sophiastraat 7, 6882NH Velp Gld

Ontvang updates voor Velp-Zuid beneden spoorlijn

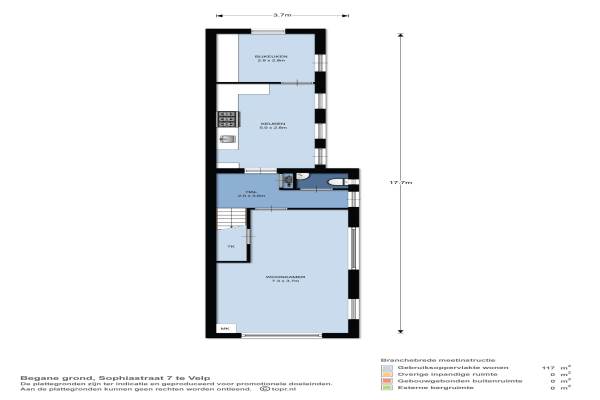
Het adres van deze woning uit 1938 is Sophiastraat 7 te Velp Gld. Het pand heeft een oppervlakte van 117m² en een perceeloppervlakte van 229m² en heeft 4 kamers kamers waarvan 3 slaapkamers. De geschatte waarde van deze woning is € 264.500.

Bekijk alle woningen in Velp-Zuid beneden spoorlijn

Gegevens van Eengezinswoning, 2-onder-1-kapwoning

Bouwjaar
1938
Geschatte waarde
€ 264.500
Oppervlakte
117 m2
Inhoud
385 m3
Aantal kamers
4 kamers
Slaapkamers
3
Badkamers
1 badkamer en 1 apart toilet
Soort bouw
Bestaande bouw
Eigendomssituatie
Volle eigendom
Ligging
In woonwijk en in bosrijke omgeving
Tuin
Achtertuin, voortuin en zijtuin
Achtertuin
108 m² (18m diep en 6m breed)

Voorzieningen in de buurt

Boodschappen0,5 km
Grote supermarkt0,5 km
Cafetaria0,4 km
Restaurant0,6 km
Huisarts1,2 km
Ziekenhuis1,2 km
Kinderdagverblijf0,4 km
BSO0,4 km
Alle voorzieningen in Velp-Zuid beneden spoorlijn

Binnenkijken bij Sophiastraat 7 te Velp Gld

Meer meldingen in deze omgeving

112 melding
Vrijdag 30-1-2026 om 20:47
Zuider Parallelweg, 6882AC Velp

112 melding
Vrijdag 30-1-2026 om 12:06
Dr. van Voorthuijsenstraat, Velp

112 melding
Vrijdag 30-1-2026 om 11:54
Zuider Parallelweg, 6882AC Velp

112 melding
Vrijdag 30-1-2026 om 11:54
Zuider Parallelweg, 6882AC Velp

112 melding
Donderdag 29-1-2026 om 16:20
Maarten van Rossumstraat, 6882CK Velp

112 melding
Donderdag 29-1-2026 om 12:23
Dr. Schaepmanstraat, 6882HP Velp

112 melding
Donderdag 29-1-2026 om 12:23
Dr. Schaepmanstraat, 6882HP Velp

112 melding
Donderdag 29-1-2026 om 10:46
Maarten van Rossumstraat, 6882CK Velp

Direct een e-mail ontvangen bij nieuwe meldingen in deze regio?

Meld je dan GRATIS aan voor de Oozo Alert service voor Velp-Zuid beneden spoorlijn

Instellen

Meer nieuws in Velp-Zuid beneden spoorlijn

Weten hoe eenvoudig het is om af te vallen? Zonder pillen en smeersels en zonder je in het zweet te werken!
Kijk op eenvoudig-afvallen.nl

© 2012 - 2026 OOZO.nl - info@oozo.nl - Gegevens verwijderen? | Disclaimer | Privacy statement