Woning Zwanensingel 60 Velp Gld

Zwanensingel 60, 6883GC Velp Gld

Ontvang updates voor Velp-Zuid beneden spoorlijn

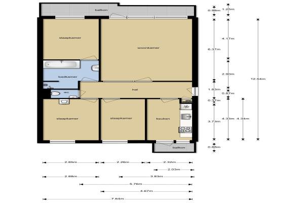
Het adres van deze woning uit 1970 is Zwanensingel 60 te Velp Gld. Het pand heeft een oppervlakte van 96m² en heeft 4 kamers kamers waarvan 3 slaapkamers. De geschatte waarde van deze woning is € 225.000.

Bekijk alle woningen in Velp-Zuid beneden spoorlijn

Gegevens van Portiekflat (appartement)

Bouwjaar
1970
Geschatte waarde
€ 225.000
Oppervlakte
96 m2
Inhoud
310 m3
Aantal kamers
4 kamers
Slaapkamers
3
Badkamers
1 badkamer en 1 apart toilet
Soort bouw
Bestaande bouw
Eigendomssituatie
Volle eigendom
Ligging
Aan rustige weg en in woonwijk

Voorzieningen in de buurt

Boodschappen0,5 km
Grote supermarkt0,5 km
Cafetaria0,4 km
Restaurant0,6 km
Huisarts1,2 km
Ziekenhuis1,2 km
Kinderdagverblijf0,4 km
BSO0,4 km
Alle voorzieningen in Velp-Zuid beneden spoorlijn

Binnenkijken bij Zwanensingel 60 te Velp Gld

Meer meldingen in deze omgeving

112 melding
Woensdag 21-1-2026 om 15:37
Heeckerensstraat, 6882DA Velp

112 melding
Woensdag 21-1-2026 om 13:21
Dr. W. Dreeshof, 6882PA Velp

112 melding
Woensdag 21-1-2026 om 10:25
Bronkhorstenstraat, 6882DR Velp

Binnenkijken bij
Woensdag 21-1-2026
Dulkeshofstraat 18, 6882NG Velp (GE)

Nieuw bedrijf
Januari 2026
Annastraat 15, 6882BA Velp

112 melding
Dinsdag 20-1-2026 om 13:42
Heeckerensstraat, 6882DA Velp

112 melding
Dinsdag 20-1-2026 om 12:09
Annastraat, 6882BB Velp

112 melding
Dinsdag 20-1-2026 om 09:31
Wulpenstraat, 6883ET Velp

Direct een e-mail ontvangen bij nieuwe meldingen in deze regio?

Meld je dan GRATIS aan voor de Oozo Alert service voor Velp-Zuid beneden spoorlijn

Instellen

Meer nieuws in Velp-Zuid beneden spoorlijn

Weten hoe eenvoudig het is om af te vallen? Zonder pillen en smeersels en zonder je in het zweet te werken!
Kijk op eenvoudig-afvallen.nl

© 2012 - 2026 OOZO.nl - info@oozo.nl - Gegevens verwijderen? | Disclaimer | Privacy statement