Woning Churchillplein 46 Velp Gld

Churchillplein 46, 6883EW Velp Gld

Ontvang updates voor Velp-Zuid ten zuiden van Waterstraat

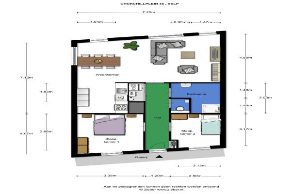
Het adres van deze woning uit 2011 is Churchillplein 46 te Velp Gld. Het pand heeft een oppervlakte van 82m² en heeft 3 kamers kamers waarvan 2 slaapkamers. De geschatte waarde van deze woning is € 199.000.

Bekijk alle woningen in Velp-Zuid ten zuiden van Waterstraat

Gegevens van Galerijflat (appartement)

Bouwjaar
2011
Geschatte waarde
€ 199.000
Oppervlakte
82 m2
Inhoud
241 m3
Aantal kamers
3 kamers
Slaapkamers
2
Badkamers
1 badkamer en 1 apart toilet
Soort bouw
Bestaande bouw
Eigendomssituatie
Volle eigendom
Ligging
In centrum en in woonwijk
Tuin
Zonneterras

Voorzieningen in de buurt

Boodschappen0,5 km
Grote supermarkt0,6 km
Cafetaria0,6 km
Restaurant0,6 km
Huisarts1,9 km
Ziekenhuis0,7 km
Kinderdagverblijf0,4 km
BSO0,4 km
Alle voorzieningen in Velp-Zuid ten zuiden van Waterstraat

Binnenkijken bij Churchillplein 46 te Velp Gld

Meer meldingen in deze omgeving

112 melding
Vrijdag 28-11-2025 om 14:34
Broekstraat, 6882GZ Velp

Nieuw bedrijf
November 2025
Kemphaanplein 11, 6883DX Velp

Nieuw bedrijf
November 2025
Churchillplein 117, 6883EW Velp

112 melding
Donderdag 27-11-2025 om 15:20
Waterstraat, 6882GB Velp

112 melding
Donderdag 27-11-2025 om 10:00
Aalscholversingel, 6883BN Velp

112 melding
Donderdag 27-11-2025 om 10:00
Aalscholversingel, 6883BN Velp

112 melding
Woensdag 26-11-2025 om 14:35
De Straatweiden, 6882EC Velp

112 melding
Woensdag 26-11-2025 om 13:41
President Kennedylaan, 6883AS Velp

Direct een e-mail ontvangen bij nieuwe meldingen in deze regio?

Meld je dan GRATIS aan voor de Oozo Alert service voor Velp-Zuid ten zuiden van Waterstraat

Instellen

Meer nieuws in Velp-Zuid ten zuiden van Waterstraat

Weten hoe eenvoudig het is om af te vallen? Zonder pillen en smeersels en zonder je in het zweet te werken!
Kijk op eenvoudig-afvallen.nl

© 2012 - 2025 OOZO.nl - info@oozo.nl - Gegevens verwijderen? | Disclaimer | Privacy statement