Woning Lindelaan 57 Rijswijk

Lindelaan 57, 2282EN Rijswijk

Ontvang updates voor Bomenbuurt

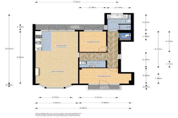
Het adres van deze woning uit 1923 is Lindelaan 57 te Rijswijk. Het pand heeft een oppervlakte van 84m² en heeft 4 kamers kamers waarvan 2 slaapkamers. De geschatte waarde van deze woning is € 199.000.

Bekijk alle woningen in Bomenbuurt

Gegevens van Bovenwoning (appartement)

Bouwjaar
1923
Geschatte waarde
€ 199.000
Oppervlakte
84 m2
Inhoud
314 m3
Aantal kamers
4 kamers
Slaapkamers
2
Badkamers
1 badkamer en 1 apart toilet
Soort bouw
Bestaande bouw
Eigendomssituatie
Volle eigendom
Ligging
In woonwijk

Voorzieningen in de buurt

Boodschappen0,3 km
Grote supermarkt0,6 km
Cafetaria0,6 km
Restaurant0,5 km
Huisarts0,7 km
Ziekenhuis2,0 km
Kinderdagverblijf0,5 km
BSO0,5 km
Alle voorzieningen in Bomenbuurt

Binnenkijken bij Lindelaan 57 te Rijswijk

Meer meldingen in deze omgeving

Nieuw bedrijf
December 2025
Magnolialaan 7, 2282DZ Rijswijk

112 melding
Dinsdag 2-12-2025 om 10:25
Thierenskade, Rijswijk

112 melding
Dinsdag 2-12-2025 om 10:10
Thierenskade, Rijswijk

Nieuw bedrijf
November 2025
Ottoburgstraat 39, 2282EH Rijswijk

Nieuw bedrijf
November 2025
Verhagen Metmanstraat 16, 2282GN Rijswijk

Binnenkijken bij
Woensdag 26-11-2025
Verhagen Metmanstraat 37, 2282GL Rijswijk (ZH)

Binnenkijken bij
Woensdag 26-11-2025
Lijsterbeslaan 84, 2282LM Rijswijk (ZH)

112 melding
Dinsdag 25-11-2025 om 23:09
Ieplaan, Rijswijk

Direct een e-mail ontvangen bij nieuwe meldingen in deze regio?

Meld je dan GRATIS aan voor de Oozo Alert service voor Bomenbuurt

Instellen

Meer nieuws in Bomenbuurt

Weten hoe eenvoudig het is om af te vallen? Zonder pillen en smeersels en zonder je in het zweet te werken!
Kijk op eenvoudig-afvallen.nl

© 2012 - 2025 OOZO.nl - info@oozo.nl - Gegevens verwijderen? | Disclaimer | Privacy statement