Woning Sir Winston Churchillln 234 Rijswijk

Sir Winston Churchillln 234, 2282JK Rijswijk

Ontvang updates voor Rembrandtkwartier

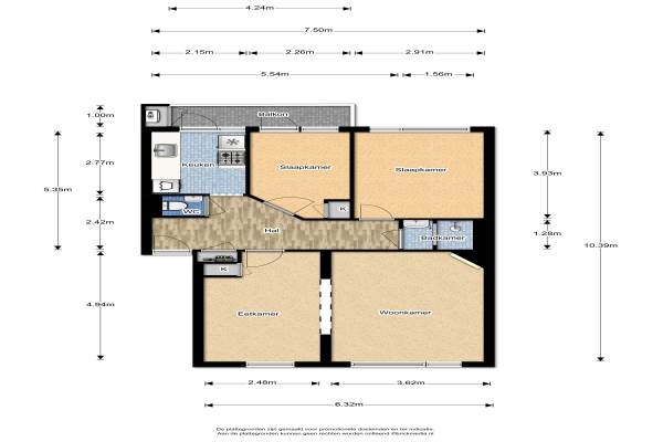
Het adres van deze woning uit 1954 is Sir Winston Churchillln 234 te Rijswijk. Het pand heeft een oppervlakte van 72m² en heeft 4 kamers kamers waarvan 2 slaapkamers. De geschatte waarde van deze woning is € 159.500.

Bekijk alle woningen in Rembrandtkwartier

Gegevens van Bovenwoning (appartement)

Bouwjaar
1954
Geschatte waarde
€ 159.500
Oppervlakte
72 m2
Inhoud
231 m3
Aantal kamers
4 kamers
Slaapkamers
2
Soort bouw
Bestaande bouw
Eigendomssituatie
Volle eigendom
Ligging
In woonwijk en vrij uitzicht

Voorzieningen in de buurt

Boodschappen0,3 km
Grote supermarkt0,4 km
Cafetaria0,2 km
Restaurant0,3 km
Huisarts0,4 km
Ziekenhuis2,1 km
Kinderdagverblijf0,3 km
BSO0,3 km
Alle voorzieningen in Rembrandtkwartier

Binnenkijken bij Sir Winston Churchillln 234 te Rijswijk

Meer meldingen in deze omgeving

Binnenkijken bij
Zaterdag 29-11-2025
Burgemeester Elsenlaan 51, 2282NB Rijswijk (ZH)

Binnenkijken bij
Zaterdag 29-11-2025
Rembrandtkade 128, 2282XC Rijswijk (ZH)

Binnenkijken bij
Zaterdag 29-11-2025
Lindelaan 225, 2282ET Rijswijk (ZH)

112 melding
Vrijdag 28-11-2025 om 19:20
Kastanjelaan, Rijswijk

Nieuw bedrijf
November 2025
Lindelaan 74, 2282GA Rijswijk

Binnenkijken bij
Woensdag 26-11-2025
Frans Halskade 209, 2282TX Rijswijk (ZH)

112 melding
Dinsdag 25-11-2025 om 22:58
Jozef Israëlslaan, Rijswijk

112 melding
Dinsdag 25-11-2025 om 22:53
Jozef Israëlslaan, Rijswijk

Direct een e-mail ontvangen bij nieuwe meldingen in deze regio?

Meld je dan GRATIS aan voor de Oozo Alert service voor Rembrandtkwartier

Instellen

Meer nieuws in Rembrandtkwartier

Weten hoe eenvoudig het is om af te vallen? Zonder pillen en smeersels en zonder je in het zweet te werken!
Kijk op eenvoudig-afvallen.nl

© 2012 - 2025 OOZO.nl - info@oozo.nl - Gegevens verwijderen? | Disclaimer | Privacy statement