Woning Burgemeester Elsenlaan 209 Rijswijk

Burgemeester Elsenlaan 209, 2282NE Rijswijk

Ontvang updates voor Rembrandtkwartier

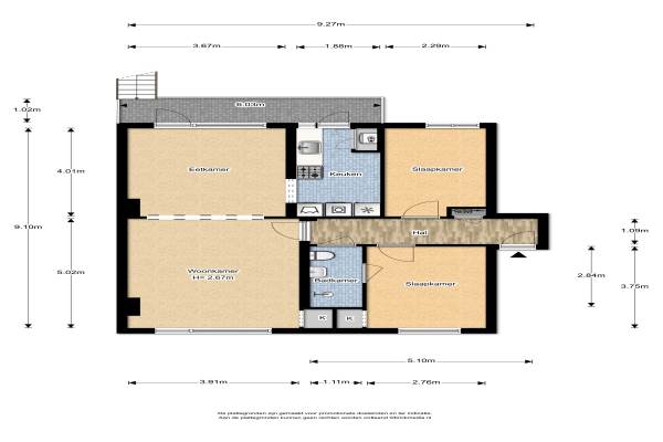
Het adres van deze woning uit 1955 is Burgemeester Elsenlaan 209 te Rijswijk. Het pand heeft een oppervlakte van 75m² en heeft 4 kamers kamers waarvan 2 slaapkamers. De geschatte waarde van deze woning is € 189.000.

Bekijk alle woningen in Rembrandtkwartier

Gegevens van Benedenwoning (appartement)

Bouwjaar
1955
Geschatte waarde
€ 189.000
Oppervlakte
75 m2
Inhoud
247 m3
Aantal kamers
4 kamers
Slaapkamers
2
Badkamers
1 badkamer
Soort bouw
Bestaande bouw
Eigendomssituatie
Volle eigendom
Ligging
Aan drukke weg, aan rustige weg, in woonwijk en vrij uitzicht
Tuin
Achtertuin
Achtertuin
89 m² (9,59m diep en 9,27m breed)

Voorzieningen in de buurt

Boodschappen0,3 km
Grote supermarkt0,4 km
Cafetaria0,2 km
Restaurant0,3 km
Huisarts0,4 km
Ziekenhuis2,1 km
Kinderdagverblijf0,3 km
BSO0,3 km
Alle voorzieningen in Rembrandtkwartier

Binnenkijken bij Burgemeester Elsenlaan 209 te Rijswijk

Meer meldingen in deze omgeving

112 melding
Vrijdag 3-4-2026 om 19:33
Van Dijcklaan, Rijswijk

112 melding
Donderdag 2-4-2026 om 15:18
Dennelaan, Rijswijk

112 melding
Donderdag 2-4-2026 om 02:37
Van Vredenburchplantsoen, Rijswijk

112 melding
Woensdag 1-4-2026 om 11:09
Jozef Israëlslaan, Rijswijk

112 melding
Woensdag 1-4-2026 om 11:09
Jozef Israëlslaan, Rijswijk

112 melding
Maandag 30-3-2026 om 23:00
Paulus Potterlaan, Rijswijk

112 melding
Maandag 30-3-2026 om 12:34
Van Vredenburchplantsoen, Rijswijk

112 melding
Maandag 30-3-2026 om 06:39
Jacob van Offwegenlaan, Rijswijk

Direct een e-mail ontvangen bij nieuwe meldingen in deze regio?

Meld je dan GRATIS aan voor de Oozo Alert service voor Rembrandtkwartier

Instellen

Meer nieuws in Rembrandtkwartier

Weten hoe eenvoudig het is om af te vallen? Zonder pillen en smeersels en zonder je in het zweet te werken!
Kijk op eenvoudig-afvallen.nl

© 2012 - 2026 OOZO.nl - info@oozo.nl - Gegevens verwijderen? | Disclaimer | Privacy statement