Woning Wijnandt van Elststraat 82 Rijswijk

Wijnandt van Elststraat 82, 2282HJ Rijswijk

Ontvang updates voor Rembrandtkwartier

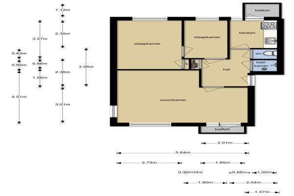
Het adres van deze woning uit 1953 is Wijnandt van Elststraat 82 te Rijswijk. Het pand heeft 3 kamers kamers waarvan 2 slaapkamers. De geschatte waarde van deze woning is € 140.000.

Bekijk alle woningen in Rembrandtkwartier

Gegevens van Bovenwoning (appartement)

Bouwjaar
1953
Geschatte waarde
€ 140.000
Oppervlakte
0 m2
Inhoud
187 m3
Aantal kamers
3 kamers
Slaapkamers
2
Soort bouw
Bestaande bouw
Eigendomssituatie
Volle eigendom
Ligging
Aan rustige weg, in centrum, in woonwijk en open ligging

Voorzieningen in de buurt

Boodschappen0,3 km
Grote supermarkt0,4 km
Cafetaria0,2 km
Restaurant0,3 km
Huisarts0,4 km
Ziekenhuis2,1 km
Kinderdagverblijf0,3 km
BSO0,3 km
Alle voorzieningen in Rembrandtkwartier

Binnenkijken bij Wijnandt van Elststraat 82 te Rijswijk

Meer meldingen in deze omgeving

Binnenkijken bij
Vrijdag 21-11-2025
Frans Halskade 86, 2282VB Rijswijk (ZH)

Nieuw bedrijf
November 2025
Dennelaan 22, 2282JB Rijswijk

Nieuw bedrijf
November 2025
Hendrik Ravesteijnplein 64, 2282GW Rijswijk

112 melding
Donderdag 20-11-2025 om 18:00
Van Vredenburchplantsoen, Rijswijk

112 melding
Donderdag 20-11-2025 om 18:00
Van Vredenburchplantsoen, Rijswijk

112 melding
Woensdag 19-11-2025 om 21:53
Jozef Israëlslaan, Rijswijk

112 melding
Woensdag 19-11-2025 om 02:24
Dennelaan, Rijswijk

Binnenkijken bij
Vrijdag 14-11-2025
Jan van Polanenstraat 10, 2282GZ Rijswijk (ZH)

Direct een e-mail ontvangen bij nieuwe meldingen in deze regio?

Meld je dan GRATIS aan voor de Oozo Alert service voor Rembrandtkwartier

Instellen

Meer nieuws in Rembrandtkwartier

Weten hoe eenvoudig het is om af te vallen? Zonder pillen en smeersels en zonder je in het zweet te werken!
Kijk op eenvoudig-afvallen.nl

© 2012 - 2025 OOZO.nl - info@oozo.nl - Gegevens verwijderen? | Disclaimer | Privacy statement