Woning Terras van Sion 60 Rijswijk

Terras van Sion 60, 2286LX Rijswijk

Ontvang updates voor Sion

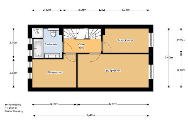
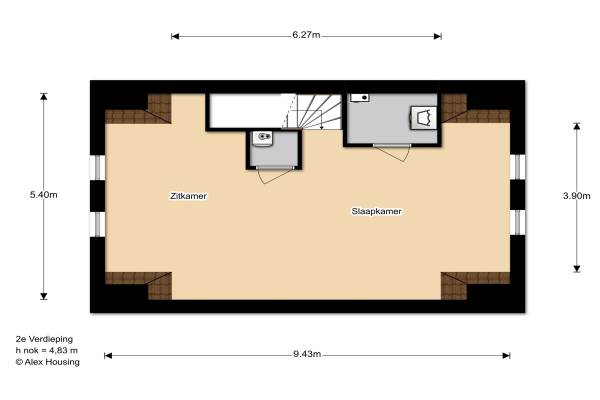
Het adres van deze woning uit 2014 is Terras van Sion 60 te Rijswijk. Het pand heeft een oppervlakte van 154m² en een perceeloppervlakte van 170m² en heeft 5 kamers kamers waarvan 4 slaapkamers. De geschatte waarde van deze woning is € 445.000.

Bekijk alle woningen in Sion

Gegevens van Eengezinswoning, tussenwoning

Bouwjaar
2014
Geschatte waarde
€ 445.000
Oppervlakte
154 m2
Inhoud
515 m3
Aantal kamers
5 kamers
Slaapkamers
4
Badkamers
1 badkamer en 1 apart toilet
Soort bouw
Bestaande bouw
Eigendomssituatie
Volle eigendom
Ligging
Aan rustige weg, in woonwijk en vrij uitzicht
Tuin
Achtertuin en voortuin
Achtertuin
62 m² (11m diep en 5,6m breed)

Voorzieningen in de buurt

Boodschappen1,3 km
Grote supermarkt1,3 km
Cafetaria1,4 km
Restaurant1,4 km
Huisarts0,4 km
Ziekenhuis3,5 km
Kinderdagverblijf0,4 km
BSO0,4 km
Alle voorzieningen in Sion

Binnenkijken bij Terras van Sion 60 te Rijswijk

Meer meldingen in deze omgeving

112 melding
Woensdag 24-12-2025 om 21:57
Gele Lis, 2286LV Rijswijk

Nieuw bedrijf
December 2025
Boomgaard 45, 2286WL Rijswijk

112 melding
Dinsdag 23-12-2025 om 08:19
Buitensingel, Rijswijk

Nieuw bedrijf
December 2025
Nieuwlandstraat 1, 2286WP Rijswijk

112 melding
Zaterdag 20-12-2025 om 16:14
Spieringsweteringweg, Rijswijk

Binnenkijken bij
Zaterdag 20-12-2025
Van der Venstraat 3, 2286WG Rijswijk (ZH)

Nieuw bedrijf
December 2025
Warmoestuin 28, 2286XZ Rijswijk

Binnenkijken bij
Vrijdag 12-12-2025
Van Rijnweg 70, 2286KC Rijswijk (ZH)

Direct een e-mail ontvangen bij nieuwe meldingen in deze regio?

Meld je dan GRATIS aan voor de Oozo Alert service voor Sion

Instellen

Meer nieuws in Sion

Weten hoe eenvoudig het is om af te vallen? Zonder pillen en smeersels en zonder je in het zweet te werken!
Kijk op eenvoudig-afvallen.nl

© 2012 - 2025 OOZO.nl - info@oozo.nl - Gegevens verwijderen? | Disclaimer | Privacy statement