Woning Abdis Aleydisstraat 7 Roermond

Abdis Aleydisstraat 7, 6041VJ Roermond

Ontvang updates voor Roerzicht-Voorstad

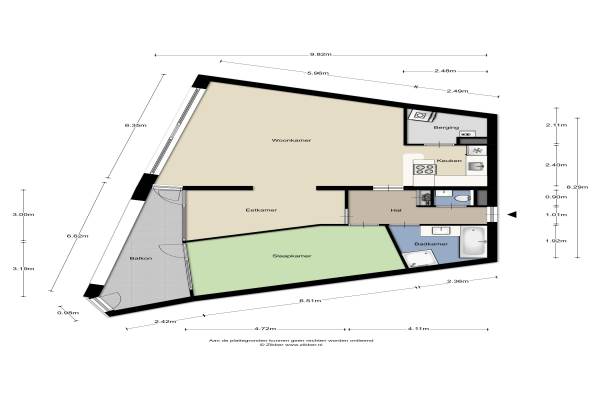
Het adres van deze woning uit 1997 is Abdis Aleydisstraat 7 te Roermond. Het pand heeft een oppervlakte van 95m² en heeft 3 kamers kamers waarvan 1 slaapkamers. De geschatte waarde van deze woning is € 315.000.

Bekijk alle woningen in Roerzicht-Voorstad

Gegevens van Portiekflat (appartement)

Bouwjaar
1997
Geschatte waarde
€ 315.000
Oppervlakte
95 m2
Inhoud
280 m3
Aantal kamers
3 kamers
Slaapkamers
1
Badkamers
1 badkamer en 1 apart toilet
Soort bouw
Bestaande bouw
Eigendomssituatie
Volle eigendom
Ligging
Aan water en vrij uitzicht

Voorzieningen in de buurt

Boodschappen0,8 km
Grote supermarkt0,7 km
Cafetaria0,8 km
Restaurant0,6 km
Huisarts0,9 km
Ziekenhuis1,9 km
Kinderdagverblijf0,5 km
BSO0,5 km
Alle voorzieningen in Roerzicht-Voorstad

Binnenkijken bij Abdis Aleydisstraat 7 te Roermond

Meer meldingen in deze omgeving

Binnenkijken bij
Vrijdag 21-11-2025
Bisschop Drehmansstraat 17, 6041XD Roermond

112 melding
Vrijdag 14-11-2025 om 06:12
Bisschop Lindanussingel, 6041LV Roermond

112 melding
Vrijdag 14-11-2025 om 06:10
Bisschop Lindanussingel, 6041LV Roermond

Binnenkijken bij
Dinsdag 11-11-2025
Hammerveldlaan 21, 6041VV Roermond

Binnenkijken bij
Dinsdag 11-11-2025
Sint Jacobslaan 28, 6041LJ Roermond

Binnenkijken bij
Dinsdag 11-11-2025
Voorstad Sint Jacob 97, 6041LL Roermond

112 melding
Donderdag 30-10-2025 om 08:24
Bisschop Schrijnenstraat, 6041XK Roermond

112 melding
Donderdag 30-10-2025 om 08:23
Bisschop Schrijnenstraat, 6041XK Roermond

Direct een e-mail ontvangen bij nieuwe meldingen in deze regio?

Meld je dan GRATIS aan voor de Oozo Alert service voor Roerzicht-Voorstad

Instellen

Meer nieuws in Roerzicht-Voorstad

Weten hoe eenvoudig het is om af te vallen? Zonder pillen en smeersels en zonder je in het zweet te werken!
Kijk op eenvoudig-afvallen.nl

© 2012 - 2025 OOZO.nl - info@oozo.nl - Gegevens verwijderen? | Disclaimer | Privacy statement