Woning Scheidingsweg 68 Roermond

Scheidingsweg 68, 6045CS Roermond

Ontvang updates voor Kapel-Muggenbroek

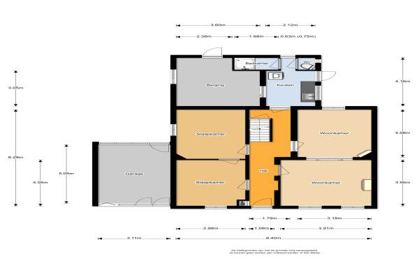
Het adres van deze woning uit 1921 is Scheidingsweg 68 te Roermond. Het pand heeft een oppervlakte van 157m² en een perceeloppervlakte van 618m² en heeft 9 kamers kamers waarvan 5 slaapkamers. De geschatte waarde van deze woning is € 199.000.

Bekijk alle woningen in Kapel-Muggenbroek

Gegevens van Eengezinswoning, vrijstaande woning

Bouwjaar
1921
Geschatte waarde
€ 199.000
Oppervlakte
157 m2
Inhoud
725 m3
Aantal kamers
9 kamers
Slaapkamers
5
Badkamers
1 badkamer en 1 apart toilet
Soort bouw
Bestaande bouw
Eigendomssituatie
Volle eigendom
Ligging
In woonwijk
Tuin
Achtertuin
Achtertuin
173 m² (15m diep en 11,5m breed)

Voorzieningen in de buurt

Boodschappen0,4 km
Grote supermarkt0,8 km
Cafetaria0,3 km
Restaurant0,8 km
Huisarts0,4 km
Ziekenhuis1,7 km
Kinderdagverblijf0,4 km
BSO0,4 km
Alle voorzieningen in Kapel-Muggenbroek

Binnenkijken bij Scheidingsweg 68 te Roermond

Meer meldingen in deze omgeving

Onroerend goed
Vrijdag 17-10-2025
Kapellerlaan 255, 6045AG Roermond

Nieuw bedrijf
Oktober 2025
Heinsbergerweg 54A, 6045CH Roermond

Binnenkijken bij
Vrijdag 10-10-2025
Heinsbergerweg 58, 6045CH Roermond

Binnenkijken bij
Vrijdag 10-10-2025
Pater van den Heuvelstraat 4, 6045BR Roermond

Binnenkijken bij
Donderdag 9-10-2025
Scheidingsweg 13, 6045CN Roermond

Binnenkijken bij
Donderdag 9-10-2025
Schoolpad 50, 6045AT Roermond

Nieuw bedrijf
Oktober 2025
Petrus Polliusstraat 63, 6045BW Roermond

Binnenkijken bij
Woensdag 1-10-2025
Heinsbergerweg 92, 6045CJ Roermond

Direct een e-mail ontvangen bij nieuwe meldingen in deze regio?

Meld je dan GRATIS aan voor de Oozo Alert service voor Kapel-Muggenbroek

Instellen

Meer nieuws in Kapel-Muggenbroek

Weten hoe eenvoudig het is om af te vallen? Zonder pillen en smeersels en zonder je in het zweet te werken!
Kijk op eenvoudig-afvallen.nl

© 2012 - 2025 OOZO.nl - info@oozo.nl - Gegevens verwijderen? | Disclaimer | Privacy statement