Woning Dordtsestraatweg 627 Rotterdam

Dordtsestraatweg 627, 3075BC Rotterdam

Ontvang updates voor Vreewijk

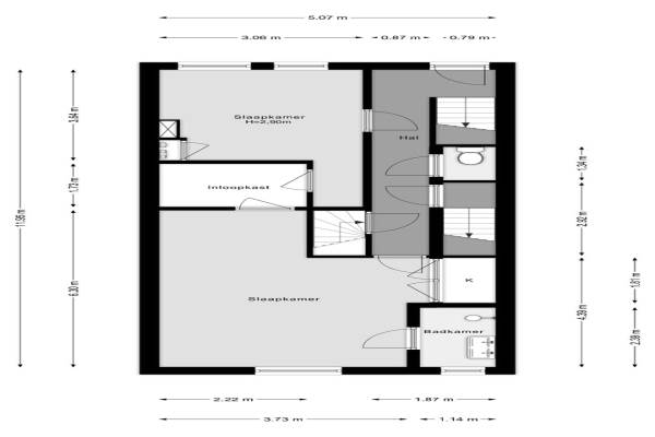
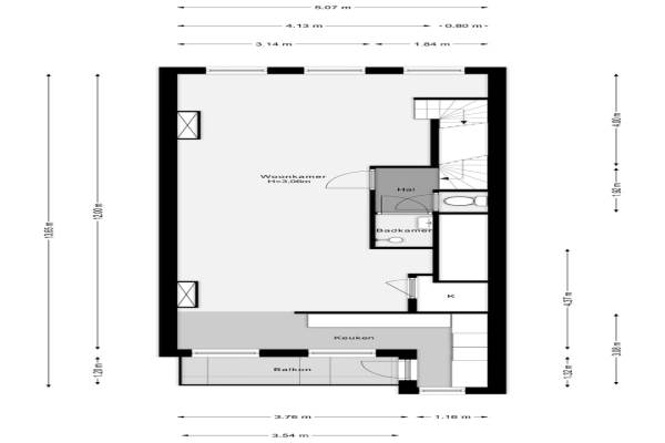
Het adres van deze woning uit 1901 is Dordtsestraatweg 627 te Rotterdam. Het pand heeft een oppervlakte van 167m² en een perceeloppervlakte van 134m² en heeft 4 kamers kamers waarvan 3 slaapkamers. De geschatte waarde van deze woning is € 400.000.

Bekijk alle woningen in Vreewijk

Gegevens van Eengezinswoning, tussenwoning

Bouwjaar
1901
Geschatte waarde
€ 400.000
Oppervlakte
167 m2
Inhoud
687 m3
Aantal kamers
4 kamers
Slaapkamers
3
Badkamers
2 badkamers en 2 aparte toiletten
Soort bouw
Bestaande bouw
Eigendomssituatie
Volle eigendom
Ligging
Aan rustige weg, in woonwijk en vrij uitzicht
Tuin
Achtertuin

Voorzieningen in de buurt

Boodschappen0,4 km
Grote supermarkt0,6 km
Cafetaria0,4 km
Restaurant0,4 km
Huisarts0,6 km
Ziekenhuis0,7 km
Kinderdagverblijf0,4 km
BSO0,3 km
Alle voorzieningen in Vreewijk

Binnenkijken bij Dordtsestraatweg 627 te Rotterdam

Meer meldingen in deze omgeving

112 melding
Vrijdag 13-3-2026 om 19:46
Montessoriweg, 3083AN Rotterdam

112 melding
Vrijdag 13-3-2026 om 18:16
Verlengde Motorstraat, 3075NL Rotterdam

112 melding
Vrijdag 13-3-2026 om 17:08
Montessoriweg, 3083AN Rotterdam

112 melding
Vrijdag 13-3-2026 om 16:13
Weimansweg, 3075MK Rotterdam

112 melding
Vrijdag 13-3-2026 om 15:55
Motorstraat, 3083AP Rotterdam

112 melding
Vrijdag 13-3-2026 om 15:55
Motorstraat, 3083AP Rotterdam

112 melding
Vrijdag 13-3-2026 om 15:30
Langegeer, 3075JE Rotterdam

112 melding
Vrijdag 13-3-2026 om 14:52
Montessoriweg, 3083AN Rotterdam

Direct een e-mail ontvangen bij nieuwe meldingen in deze regio?

Meld je dan GRATIS aan voor de Oozo Alert service voor Vreewijk

Instellen

Meer nieuws in Vreewijk

Weten hoe eenvoudig het is om af te vallen? Zonder pillen en smeersels en zonder je in het zweet te werken!
Kijk op eenvoudig-afvallen.nl

© 2012 - 2026 OOZO.nl - info@oozo.nl - Gegevens verwijderen? | Disclaimer | Privacy statement