Woning Groene Hilledijk 440 Rotterdam

Groene Hilledijk 440, 3075EH Rotterdam

Ontvang updates voor Vreewijk

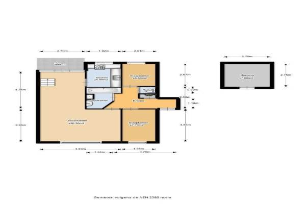
Het adres van deze woning uit 1950 is Groene Hilledijk 440 te Rotterdam. Het pand heeft een oppervlakte van 65m² en heeft 4 kamers kamers waarvan 2 slaapkamers. De geschatte waarde van deze woning is € 145.000.

Bekijk alle woningen in Vreewijk

Gegevens van Portiekwoning (appartement)

Bouwjaar
1950
Geschatte waarde
€ 145.000
Oppervlakte
65 m2
Inhoud
185 m3
Aantal kamers
4 kamers
Slaapkamers
2
Badkamers
1 apart toilet
Soort bouw
Bestaande bouw
Ligging
In woonwijk
Tuin
Achtertuin
Achtertuin
105 m² (15m diep en 7m breed)

Voorzieningen in de buurt

Boodschappen0,4 km
Grote supermarkt0,6 km
Cafetaria0,4 km
Restaurant0,4 km
Huisarts0,6 km
Ziekenhuis0,7 km
Kinderdagverblijf0,4 km
BSO0,3 km
Alle voorzieningen in Vreewijk

Binnenkijken bij Groene Hilledijk 440 te Rotterdam

Meer meldingen in deze omgeving

112 melding
Woensdag 17-12-2025 om 18:08
Dordtsestraatweg, 3075BA Rotterdam

112 melding
Woensdag 17-12-2025 om 17:05
Montessoriweg, 3083AN Rotterdam

112 melding
Woensdag 17-12-2025 om 13:29
Beukendaal, 3075LC Rotterdam

112 melding
Woensdag 17-12-2025 om 13:19
Beukendaal, 3075LC Rotterdam

112 melding
Woensdag 17-12-2025 om 12:19
Motorstraat, 3083AP Rotterdam

112 melding
Woensdag 17-12-2025 om 10:39
Sandelingplein, 3075AG Rotterdam

112 melding
Dinsdag 16-12-2025 om 22:53
Beukendaal, 3075LE Rotterdam

112 melding
Dinsdag 16-12-2025 om 22:47
Eiberpad, 3075MB Rotterdam

Direct een e-mail ontvangen bij nieuwe meldingen in deze regio?

Meld je dan GRATIS aan voor de Oozo Alert service voor Vreewijk

Instellen

Meer nieuws in Vreewijk

Weten hoe eenvoudig het is om af te vallen? Zonder pillen en smeersels en zonder je in het zweet te werken!
Kijk op eenvoudig-afvallen.nl

© 2012 - 2025 OOZO.nl - info@oozo.nl - Gegevens verwijderen? | Disclaimer | Privacy statement