Woning Hoyledesingel 4 Rotterdam

Hoyledesingel 4, 3054EK Rotterdam

Ontvang updates voor Hillegersberg Noord

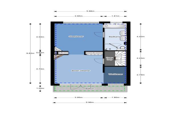
Het adres van deze woning uit 1929 is Hoyledesingel 4 te Rotterdam. Het pand heeft een oppervlakte van 167m² en een perceeloppervlakte van 170m² en heeft 8 kamers kamers waarvan 5 slaapkamers. De geschatte waarde van deze woning is € 650.000.

Bekijk alle woningen in Hillegersberg Noord

Gegevens van Herenhuis, tussenwoning

Bouwjaar
1929
Geschatte waarde
€ 650.000
Oppervlakte
167 m2
Inhoud
610 m3
Aantal kamers
8 kamers
Slaapkamers
5
Badkamers
2 badkamers en 1 apart toilet
Soort bouw
Bestaande bouw
Eigendomssituatie
Volle eigendom
Tuin
Achtertuin en voortuin
Achtertuin
47 m² (8,5m diep en 5,5m breed)

Voorzieningen in de buurt

Boodschappen0,6 km
Grote supermarkt0,7 km
Cafetaria0,5 km
Restaurant0,5 km
Huisarts0,7 km
Ziekenhuis3,8 km
Kinderdagverblijf0,4 km
BSO0,6 km
Alle voorzieningen in Hillegersberg Noord

Binnenkijken bij Hoyledesingel 4 te Rotterdam

Meer meldingen in deze omgeving

112 melding
Vrijdag 30-1-2026 om 12:28
Aleyda van Raephorstlaan, 3054CR Rotterdam

112 melding
Vrijdag 30-1-2026 om 11:19
Minervaplein, 3054SK Rotterdam

112 melding
Vrijdag 30-1-2026 om 09:31
Minosstraat, 3054RX Rotterdam

112 melding
Vrijdag 30-1-2026 om 03:54
Aleyda van Raephorstlaan, 3054CR Rotterdam

Binnenkijken bij
Vrijdag 30-1-2026
Freericksplaats 23B, 3054GK Rotterdam

Binnenkijken bij
Vrijdag 30-1-2026
Visvreugdstraat 39, 3054VK Rotterdam

112 melding
Donderdag 29-1-2026 om 14:14
Kerkstraat, Rotterdam

112 melding
Dinsdag 27-1-2026 om 15:13
Minervaplein, 3054SK Rotterdam

Direct een e-mail ontvangen bij nieuwe meldingen in deze regio?

Meld je dan GRATIS aan voor de Oozo Alert service voor Hillegersberg Noord

Instellen

Meer nieuws in Hillegersberg Noord

Weten hoe eenvoudig het is om af te vallen? Zonder pillen en smeersels en zonder je in het zweet te werken!
Kijk op eenvoudig-afvallen.nl

© 2012 - 2026 OOZO.nl - info@oozo.nl - Gegevens verwijderen? | Disclaimer | Privacy statement