Woning Lisbloemstraat 25 Rotterdam

Lisbloemstraat 25, 3051TN Rotterdam

Ontvang updates voor Hillegersberg Zuid

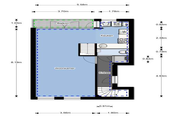
Het adres van deze woning uit 1923 is Lisbloemstraat 25 te Rotterdam. Het pand heeft een oppervlakte van 110m² en heeft 5 kamers kamers waarvan 4 slaapkamers. De geschatte waarde van deze woning is € 269.500.

Bekijk alle woningen in Hillegersberg Zuid

Gegevens van Benedenwoning (appartement)

Bouwjaar
1923
Geschatte waarde
€ 269.500
Oppervlakte
110 m2
Inhoud
366 m3
Aantal kamers
5 kamers
Slaapkamers
4
Badkamers
1 badkamer en 1 apart toilet
Soort bouw
Bestaande bouw
Eigendomssituatie
Volle eigendom
Ligging
In woonwijk
Tuin
Achtertuin
Achtertuin
45 m² (9m diep en 5m breed)

Voorzieningen in de buurt

Boodschappen0,3 km
Grote supermarkt0,4 km
Cafetaria0,3 km
Restaurant0,2 km
Huisarts0,3 km
Ziekenhuis1,8 km
Kinderdagverblijf0,3 km
BSO0,3 km
Alle voorzieningen in Hillegersberg Zuid

Binnenkijken bij Lisbloemstraat 25 te Rotterdam

Meer meldingen in deze omgeving

112 melding
Maandag 10-11-2025 om 23:43
Kleiweg, 3045PM Rotterdam

112 melding
Maandag 10-11-2025 om 22:36
Kleiweg, 3045PM Rotterdam

112 melding
Maandag 10-11-2025 om 22:36
Kleiweg, 3045PM Rotterdam

112 melding
Maandag 10-11-2025 om 20:25
Kleiweg, 3045PM Rotterdam

112 melding
Maandag 10-11-2025 om 18:49
Kleiweg, 3045PM Rotterdam

112 melding
Maandag 10-11-2025 om 18:11
Kleiweg, 3045PM Rotterdam

112 melding
Maandag 10-11-2025 om 13:11
Kleiweg, 3045PM Rotterdam

112 melding
Maandag 10-11-2025 om 12:07
Kleiweg, 3045PM Rotterdam

Direct een e-mail ontvangen bij nieuwe meldingen in deze regio?

Meld je dan GRATIS aan voor de Oozo Alert service voor Hillegersberg Zuid

Instellen

Meer nieuws in Hillegersberg Zuid

Weten hoe eenvoudig het is om af te vallen? Zonder pillen en smeersels en zonder je in het zweet te werken!
Kijk op eenvoudig-afvallen.nl

© 2012 - 2025 OOZO.nl - info@oozo.nl - Gegevens verwijderen? | Disclaimer | Privacy statement