Woning Kleiweg 323 Rotterdam

Kleiweg 323, 3051XR Rotterdam

Ontvang updates voor Hillegersberg Zuid

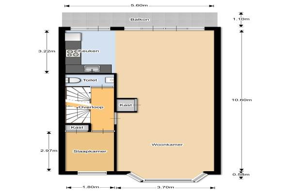
Het adres van deze woning uit 1922 is Kleiweg 323 te Rotterdam. Het pand heeft een oppervlakte van 116m² en heeft 5 kamers kamers waarvan 4 slaapkamers. De geschatte waarde van deze woning is € 325.000.

Bekijk alle woningen in Hillegersberg Zuid

Gegevens van Bovenwoning (appartement)

Bouwjaar
1922
Geschatte waarde
€ 325.000
Oppervlakte
116 m2
Inhoud
349 m3
Aantal kamers
5 kamers
Slaapkamers
4
Badkamers
1 badkamer en 2 aparte toiletten
Soort bouw
Bestaande bouw
Eigendomssituatie
Volle eigendom

Voorzieningen in de buurt

Boodschappen0,3 km
Grote supermarkt0,4 km
Cafetaria0,3 km
Restaurant0,2 km
Huisarts0,3 km
Ziekenhuis1,8 km
Kinderdagverblijf0,3 km
BSO0,3 km
Alle voorzieningen in Hillegersberg Zuid

Binnenkijken bij Kleiweg 323 te Rotterdam

Meer meldingen in deze omgeving

112 melding
Vrijdag 28-11-2025 om 09:10
Kleiweg, 3045PM Rotterdam

112 melding
Vrijdag 28-11-2025 om 08:38
Kleiweg, 3045PM Rotterdam

112 melding
Vrijdag 28-11-2025 om 08:05
Kleiweg, 3045PM Rotterdam

Binnenkijken bij
Vrijdag 28-11-2025
Baroniestraat 34B, 3051EE Rotterdam

Nieuw bedrijf
November 2025
Rozenlaan 45B, 3051LK Rotterdam

Nieuw bedrijf
November 2025
Lisbloemstraat 14B, 3051TR Rotterdam

Nieuw bedrijf
November 2025
Prins Frederik Hendrikstraat 23, 3051EM Rotterdam

Nieuw bedrijf
November 2025
Jan Willem Frisostraat 22B, 3051EK Rotterdam

Direct een e-mail ontvangen bij nieuwe meldingen in deze regio?

Meld je dan GRATIS aan voor de Oozo Alert service voor Hillegersberg Zuid

Instellen

Meer nieuws in Hillegersberg Zuid

Weten hoe eenvoudig het is om af te vallen? Zonder pillen en smeersels en zonder je in het zweet te werken!
Kijk op eenvoudig-afvallen.nl

© 2012 - 2025 OOZO.nl - info@oozo.nl - Gegevens verwijderen? | Disclaimer | Privacy statement