Woning Zuidzijdsedijk 123 Hoogvliet Rotterdam

Zuidzijdsedijk 123, 3194ND Hoogvliet Rotterdam

Ontvang updates voor Hoogvliet Noord

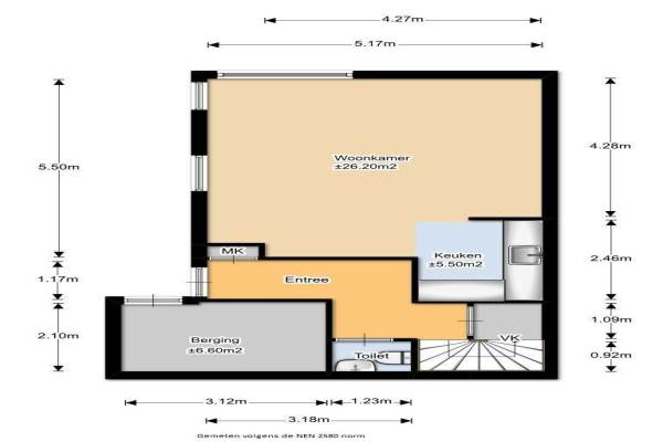
Het adres van deze woning uit 1995 is Zuidzijdsedijk 123 te Hoogvliet Rotterdam. Het pand heeft een oppervlakte van 91m² en een perceeloppervlakte van 156m² en heeft 3 kamers kamers waarvan 2 slaapkamers. De geschatte waarde van deze woning is € 175.000.

Bekijk alle woningen in Hoogvliet Noord

Gegevens van Eengezinswoning, eindwoning

Bouwjaar
1995
Geschatte waarde
€ 175.000
Oppervlakte
91 m2
Inhoud
288 m3
Aantal kamers
3 kamers
Slaapkamers
2
Badkamers
2 aparte toiletten
Soort bouw
Bestaande bouw
Ligging
In woonwijk
Tuin
Voortuin

Voorzieningen in de buurt

Boodschappen0,6 km
Grote supermarkt0,8 km
Cafetaria0,6 km
Restaurant0,7 km
Huisarts0,8 km
Ziekenhuis1,1 km
Kinderdagverblijf0,3 km
BSO0,5 km
Alle voorzieningen in Hoogvliet Noord

Binnenkijken bij Zuidzijdsedijk 123 te Hoogvliet Rotterdam

Meer meldingen in deze omgeving

112 melding
Zondag 31-5-2026 om 11:37
Zuidzijdsedijk, 3194ND Hoogvliet Rotterdam

112 melding
Zaterdag 30-5-2026 om 23:27
Herikweg, 3193KC Hoogvliet Rotterdam

112 melding
Zaterdag 30-5-2026 om 22:50
Zuidzijdsedijk, 3194ND Hoogvliet Rotterdam

112 melding
Zaterdag 30-5-2026 om 19:26
Siegfriedpad, 3194VW Hoogvliet Rotterdam

112 melding
Zaterdag 30-5-2026 om 18:32
Platte Driedijk, 3194KC Hoogvliet Rotterdam

112 melding
Zaterdag 30-5-2026 om 11:06
Sara Burgerhartweg, 3193TB Hoogvliet Rotterdam

112 melding
Vrijdag 29-5-2026 om 09:13
Curaçaoplein, 3193LK Hoogvliet Rotterdam

Nieuw bedrijf
Mei 2026
Saffraanstraat 286, 3193XP Hoogvliet Rotterdam

Direct een e-mail ontvangen bij nieuwe meldingen in deze regio?

Meld je dan GRATIS aan voor de Oozo Alert service voor Hoogvliet Noord

Instellen

Meer nieuws in Hoogvliet Noord

Weten hoe eenvoudig het is om af te vallen? Zonder pillen en smeersels en zonder je in het zweet te werken!
Kijk op eenvoudig-afvallen.nl

© 2012 - 2026 OOZO.nl - info@oozo.nl - Gegevens verwijderen? | Disclaimer | Privacy statement