Woning Bazeldijk 3 Rotterdam

Bazeldijk 3, 3079PP Rotterdam

Ontvang updates voor Groot IJsselmonde

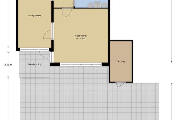
Het adres van deze woning uit 1984 is Bazeldijk 3 te Rotterdam. Het pand heeft een oppervlakte van 84m² en heeft 4 kamers kamers waarvan 3 slaapkamers. De geschatte waarde van deze woning is € 275.000.

Bekijk alle woningen in Groot IJsselmonde

Gegevens van Portiekflat (appartement)

Bouwjaar
1984
Geschatte waarde
€ 275.000
Oppervlakte
84 m2
Inhoud
262 m3
Aantal kamers
4 kamers
Slaapkamers
3
Badkamers
1 badkamer
Soort bouw
Bestaande bouw
Eigendomssituatie
Erfpacht (einddatum erfpacht: 07-07-2082)
Ligging
Aan rustige weg en in woonwijk
Tuin
Achtertuin

Voorzieningen in de buurt

Boodschappen0,5 km
Grote supermarkt0,7 km
Cafetaria0,4 km
Restaurant0,6 km
Huisarts0,5 km
Ziekenhuis2,4 km
Kinderdagverblijf0,4 km
BSO0,5 km
Alle voorzieningen in Groot IJsselmonde

Binnenkijken bij Bazeldijk 3 te Rotterdam

Meer meldingen in deze omgeving

112 melding
Zaterdag 25-4-2026 om 09:33
Zuiderhagen, 3078BS Rotterdam

112 melding
Zaterdag 25-4-2026 om 06:59
Grienderwaard, 3078NR Rotterdam

112 melding
Vrijdag 24-4-2026 om 18:32
Olympiaweg, 3078HT Rotterdam

112 melding
Vrijdag 24-4-2026 om 17:45
Maasstadweg, 3079DZ Rotterdam

112 melding
Vrijdag 24-4-2026 om 17:20
Maasstadweg, 3079DZ Rotterdam

112 melding
Vrijdag 24-4-2026 om 16:34
Maasstadweg, 3079DZ Rotterdam

112 melding
Vrijdag 24-4-2026 om 15:57
Maasstadweg, 3079DZ Rotterdam

112 melding
Vrijdag 24-4-2026 om 15:45
Kreekplein, 3079AB Rotterdam

Direct een e-mail ontvangen bij nieuwe meldingen in deze regio?

Meld je dan GRATIS aan voor de Oozo Alert service voor Groot IJsselmonde

Instellen

Meer nieuws in Groot IJsselmonde

Weten hoe eenvoudig het is om af te vallen? Zonder pillen en smeersels en zonder je in het zweet te werken!
Kijk op eenvoudig-afvallen.nl

© 2012 - 2026 OOZO.nl - info@oozo.nl - Gegevens verwijderen? | Disclaimer | Privacy statement