Woning Adamshofstraat 150B Rotterdam

Adamshofstraat 150B, 3061ZJ Rotterdam

Ontvang updates voor Kralingen West

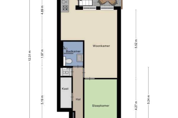
Het adres van deze woning uit 1912 is Adamshofstraat 150B te Rotterdam. Het pand heeft een oppervlakte van 45m² en heeft 2 kamers kamers waarvan 1 slaapkamers. De geschatte waarde van deze woning is € 250.000.

Bekijk alle woningen in Kralingen West

Gegevens van Benedenwoning (appartement)

Bouwjaar
1912
Geschatte waarde
€ 250.000
Oppervlakte
45 m2
Inhoud
176 m3
Aantal kamers
2 kamers
Slaapkamers
1
Badkamers
1 badkamer en 1 apart toilet
Soort bouw
Bestaande bouw
Eigendomssituatie
Volle eigendom
Ligging
Aan rustige weg, beschutte ligging en in woonwijk
Tuin
Achtertuin
Achtertuin
14 m² (4 meter diep en 3,5 meter breed)

Voorzieningen in de buurt

Boodschappen0,2 km
Grote supermarkt0,3 km
Cafetaria0,2 km
Restaurant0,2 km
Huisarts0,5 km
Ziekenhuis1,2 km
Kinderdagverblijf0,3 km
BSO0,4 km
Alle voorzieningen in Kralingen West

Binnenkijken bij Adamshofstraat 150B te Rotterdam

Meer meldingen in deze omgeving

112 melding
Maandag 10-11-2025 om 16:22
Touwslagersstraat, 3061VX Rotterdam

112 melding
Maandag 10-11-2025 om 14:15
Vredenoordlaan, 3061RB Rotterdam

112 melding
Maandag 10-11-2025 om 12:21
Hoge Boezem, 3061CM Rotterdam

112 melding
Maandag 10-11-2025 om 11:28
Gashouderstraat, 3061EK Rotterdam

112 melding
Maandag 10-11-2025 om 02:36
Oostplein, 3061CH Rotterdam

112 melding
Zondag 9-11-2025 om 22:14
Vredenoordlaan, 3061RB Rotterdam

112 melding
Zondag 9-11-2025 om 14:42
Weteringstraat, 3061PN Rotterdam

112 melding
Zondag 9-11-2025 om 03:48
Vredenoordkade, 3061MT Rotterdam

Direct een e-mail ontvangen bij nieuwe meldingen in deze regio?

Meld je dan GRATIS aan voor de Oozo Alert service voor Kralingen West

Instellen

Meer nieuws in Kralingen West

Weten hoe eenvoudig het is om af te vallen? Zonder pillen en smeersels en zonder je in het zweet te werken!
Kijk op eenvoudig-afvallen.nl

© 2012 - 2025 OOZO.nl - info@oozo.nl - Gegevens verwijderen? | Disclaimer | Privacy statement