Woning Francis Picabiastraat 70 Rotterdam

Francis Picabiastraat 70, 3059RP Rotterdam

Ontvang updates voor Nesselande

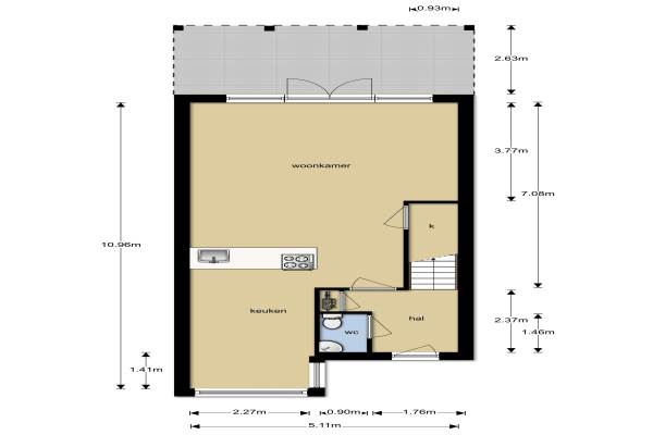
Het adres van deze woning uit 2010 is Francis Picabiastraat 70 te Rotterdam. Het pand heeft een oppervlakte van 116m² en een perceeloppervlakte van 130m² en heeft 5 kamers kamers waarvan 4 slaapkamers. De geschatte waarde van deze woning is € 330.000.

Bekijk alle woningen in Nesselande

Gegevens van Eengezinswoning, hoekwoning

Bouwjaar
2010
Geschatte waarde
€ 330.000
Oppervlakte
116 m2
Inhoud
440 m3
Aantal kamers
5 kamers
Slaapkamers
4
Badkamers
1 badkamer en 1 apart toilet
Soort bouw
Bestaande bouw
Eigendomssituatie
Volle eigendom
Ligging
Aan rustige weg en in woonwijk
Tuin
Achtertuin en voortuin
Achtertuin
44 m² (8,5m diep en 5,2m breed)

Voorzieningen in de buurt

Boodschappen1,1 km
Grote supermarkt1,1 km
Cafetaria1,0 km
Restaurant1,2 km
Huisarts1,1 km
Ziekenhuis1,4 km
Kinderdagverblijf0,6 km
BSO0,7 km
Alle voorzieningen in Nesselande

Binnenkijken bij Francis Picabiastraat 70 te Rotterdam

Meer meldingen in deze omgeving

112 melding
Zaterdag 13-12-2025 om 08:15
Bermweg, 3059LA Rotterdam

Binnenlands nieuws
Vrijdag 12-12-2025
Nesselande

Nieuw bedrijf
December 2025
Pantelleriapad 37, 3059XG Rotterdam

Nieuw bedrijf
December 2025
Pantelleriapad 2, 3059XG Rotterdam

Nieuw bedrijf
December 2025
Brandingdijk 380, 3059RB Rotterdam

Nieuw bedrijf
December 2025
Cypruslaan 139, 3059XA Rotterdam

Nieuw bedrijf
December 2025
Herman Bielingplein 29, 3059TV Rotterdam

Nieuw bedrijf
December 2025
Gerrit Rietveldstraat 42, 3059PG Rotterdam

Direct een e-mail ontvangen bij nieuwe meldingen in deze regio?

Meld je dan GRATIS aan voor de Oozo Alert service voor Nesselande

Instellen

Meer nieuws in Nesselande

Weten hoe eenvoudig het is om af te vallen? Zonder pillen en smeersels en zonder je in het zweet te werken!
Kijk op eenvoudig-afvallen.nl

© 2012 - 2025 OOZO.nl - info@oozo.nl - Gegevens verwijderen? | Disclaimer | Privacy statement