Woning Niels Bohrplaats 576 Rotterdam

Niels Bohrplaats 576, 3068JK Rotterdam

Ontvang updates voor Ommoord

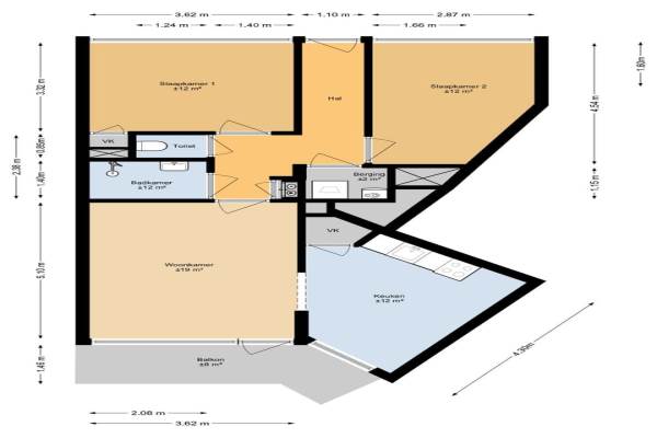
Het adres van deze woning uit 1969 is Niels Bohrplaats 576 te Rotterdam. Het pand heeft een oppervlakte van 71m² en heeft 3 kamers kamers waarvan 2 slaapkamers. De geschatte waarde van deze woning is € 287.500.

Bekijk alle woningen in Ommoord

Gegevens van Galerijflat (appartement)

Bouwjaar
1969
Geschatte waarde
€ 287.500
Oppervlakte
71 m2
Inhoud
213 m3
Aantal kamers
3 kamers
Slaapkamers
2
Badkamers
1 badkamer en 1 apart toilet
Soort bouw
Bestaande bouw
Eigendomssituatie
Volle eigendom
Ligging
In woonwijk

Voorzieningen in de buurt

Boodschappen0,7 km
Grote supermarkt0,6 km
Cafetaria0,9 km
Restaurant0,9 km
Huisarts0,9 km
Ziekenhuis4,4 km
Kinderdagverblijf0,4 km
BSO0,6 km
Alle voorzieningen in Ommoord

Binnenkijken bij Niels Bohrplaats 576 te Rotterdam

Meer meldingen in deze omgeving

112 melding
Dinsdag 30-12-2025 om 04:11
Sigrid Undsetweg, 3069BV Rotterdam

Binnenkijken bij
Dinsdag 30-12-2025
Kelloggplaats 202, 3068JG Rotterdam

Nieuw bedrijf
December 2025
Tagoreplaats 11, 3069PA Rotterdam

Nieuw bedrijf
December 2025
Theeroos 54, 3068BZ Rotterdam

Nieuw bedrijf
December 2025
Zernikeplaats 52, 3068ZK Rotterdam

Nieuw bedrijf
December 2025
Zernikeplaats 52, 3068ZK Rotterdam

112 melding
Maandag 29-12-2025 om 19:52
Hoorntandmos, 3069AK Rotterdam

112 melding
Maandag 29-12-2025 om 17:13
Max Planckplaats, 3068ZE Rotterdam

Direct een e-mail ontvangen bij nieuwe meldingen in deze regio?

Meld je dan GRATIS aan voor de Oozo Alert service voor Ommoord

Instellen

Meer nieuws in Ommoord

Weten hoe eenvoudig het is om af te vallen? Zonder pillen en smeersels en zonder je in het zweet te werken!
Kijk op eenvoudig-afvallen.nl

© 2012 - 2025 OOZO.nl - info@oozo.nl - Gegevens verwijderen? | Disclaimer | Privacy statement