Woning Segbroeklaan 410 Den Haag

Segbroeklaan 410, 2565EC Den Haag

Ontvang updates voor Bloemenbuurt-Oost

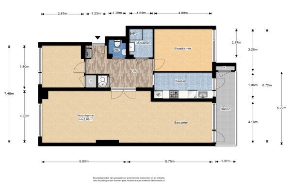
Het adres van deze woning uit 1960 is Segbroeklaan 410 te Den Haag. Het pand heeft een oppervlakte van 95m² en heeft 4 kamers kamers waarvan 2 slaapkamers. De geschatte waarde van deze woning is € 285.000.

Bekijk alle woningen in Bloemenbuurt-Oost

Gegevens van Portiekflat (appartement)

Bouwjaar
1960
Geschatte waarde
€ 285.000
Oppervlakte
95 m2
Inhoud
309 m3
Aantal kamers
4 kamers
Slaapkamers
2
Badkamers
1 apart toilet
Soort bouw
Bestaande bouw
Eigendomssituatie
Gemeentelijke erfpacht (einddatum erfpacht: 31-12-2027)
Ligging
In woonwijk en vrij uitzicht

Voorzieningen in de buurt

Boodschappen0,2 km
Grote supermarkt0,3 km
Cafetaria0,2 km
Restaurant0,2 km
Huisarts0,3 km
Ziekenhuis0,9 km
Kinderdagverblijf0,2 km
BSO0,4 km
Alle voorzieningen in Bloemenbuurt-Oost

Binnenkijken bij Segbroeklaan 410 te Den Haag

Meer meldingen in deze omgeving

112 melding
Zaterdag 6-12-2025 om 13:17
Anemoonstraat, 2565DD 's-Gravenhage

Nieuw bedrijf
December 2025
Thomsonlaan 217, 2565JC 's-Gravenhage

Nieuw bedrijf
December 2025
Sneeuwbalstraat 196, 2565WH 's-Gravenhage

Nieuw bedrijf
December 2025
Laan van Meerdervoort 545, 2563AW 's-Gravenhage

Nieuw bedrijf
December 2025
Irisstraat 152, 2565TP 's-Gravenhage

Nieuw bedrijf
December 2025
Goudenregenstraat 119, 2565EP 's-Gravenhage

Nieuw bedrijf
December 2025
Goudenregenstraat 119, 2565EP 's-Gravenhage

Nieuw bedrijf
December 2025
Goudenregenstraat 207, 2565ES 's-Gravenhage

Direct een e-mail ontvangen bij nieuwe meldingen in deze regio?

Meld je dan GRATIS aan voor de Oozo Alert service voor Bloemenbuurt-Oost

Instellen

Meer nieuws in Bloemenbuurt-Oost

Weten hoe eenvoudig het is om af te vallen? Zonder pillen en smeersels en zonder je in het zweet te werken!
Kijk op eenvoudig-afvallen.nl

© 2012 - 2025 OOZO.nl - info@oozo.nl - Gegevens verwijderen? | Disclaimer | Privacy statement