Woning Dunklerstraat 8 Den Haag

Dunklerstraat 8, 2517SW Den Haag

Ontvang updates voor Stadhoudersplantsoen

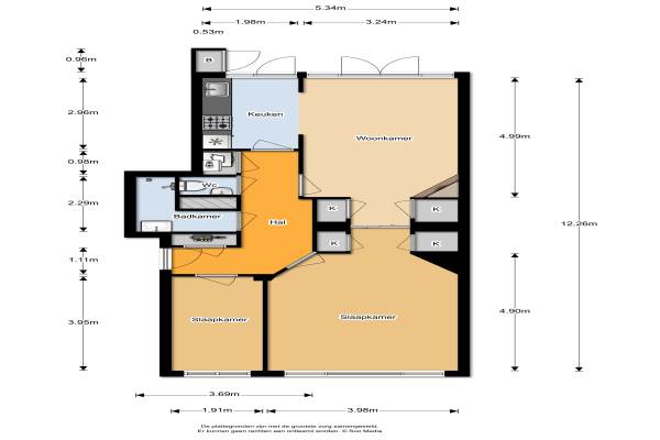
Het adres van deze woning uit 1953 is Dunklerstraat 8 te Den Haag. Het pand heeft een oppervlakte van 66m² en heeft 3 kamers kamers waarvan 2 slaapkamers. De geschatte waarde van deze woning is € 275.000.

Bekijk alle woningen in Stadhoudersplantsoen

Gegevens van Benedenwoning (appartement)

Bouwjaar
1953
Geschatte waarde
€ 275.000
Oppervlakte
66 m2
Inhoud
220 m3
Aantal kamers
3 kamers
Slaapkamers
2
Badkamers
1 badkamer en 1 apart toilet
Soort bouw
Bestaande bouw
Eigendomssituatie
Volle eigendom
Ligging
Aan rustige weg en in woonwijk
Tuin
Achtertuin en voortuin
Achtertuin
48 m² (8,93m diep en 5,34m breed)

Voorzieningen in de buurt

Boodschappen0,1 km
Grote supermarkt0,4 km
Cafetaria0,2 km
Restaurant0,1 km
Huisarts0,3 km
Ziekenhuis1,3 km
Kinderdagverblijf0,2 km
BSO0,2 km
Alle voorzieningen in Stadhoudersplantsoen

Binnenkijken bij Dunklerstraat 8 te Den Haag

Meer meldingen in deze omgeving

112 melding
Donderdag 15-1-2026 om 11:02
Verhulstplein, 's-Gravenhage

112 melding
Zondag 11-1-2026 om 04:35
Verhulstplein, 's-Gravenhage

Binnenkijken bij
Zondag 11-1-2026
Obrechtstraat 417, 2517VB Den Haag

Binnenkijken bij
Zondag 11-1-2026
Cornelis de Wittlaan 642, 2582CW Den Haag

112 melding
Zaterdag 10-1-2026 om 19:29
Lübeckstraat, 's-Gravenhage

Binnenkijken bij
Zaterdag 10-1-2026
Valeriusstraat 52, 2517HS Den Haag

Binnenkijken bij
Vrijdag 9-1-2026
Stadhouderslaan 38, 2517HZ Den Haag

Binnenkijken bij
Vrijdag 9-1-2026
Cornelis de Wittlaan 260, 2582CN Den Haag

Direct een e-mail ontvangen bij nieuwe meldingen in deze regio?

Meld je dan GRATIS aan voor de Oozo Alert service voor Stadhoudersplantsoen

Instellen

Meer nieuws in Stadhoudersplantsoen

Weten hoe eenvoudig het is om af te vallen? Zonder pillen en smeersels en zonder je in het zweet te werken!
Kijk op eenvoudig-afvallen.nl

© 2012 - 2026 OOZO.nl - info@oozo.nl - Gegevens verwijderen? | Disclaimer | Privacy statement