Woning Conradkade 157 Den Haag

Conradkade 157, 2517CK Den Haag

Ontvang updates voor Stadhoudersplantsoen

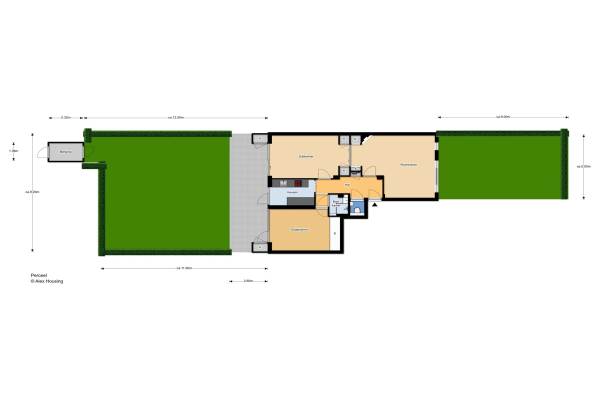
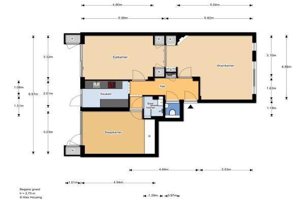
Het adres van deze woning uit 1953 is Conradkade 157 te Den Haag. Het pand heeft een oppervlakte van 78m² en heeft 3 kamers kamers waarvan 1 slaapkamers. De geschatte waarde van deze woning is € 275.000.

Bekijk alle woningen in Stadhoudersplantsoen

Gegevens van Benedenwoning (appartement)

Bouwjaar
1953
Geschatte waarde
€ 275.000
Oppervlakte
78 m2
Inhoud
260 m3
Aantal kamers
3 kamers
Slaapkamers
1
Soort bouw
Bestaande bouw
Eigendomssituatie
Volle eigendom
Ligging
Aan drukke weg, in woonwijk en vrij uitzicht
Tuin
Achtertuin en voortuin
Achtertuin
99 m² (0,11m diep en 0,09m breed)

Voorzieningen in de buurt

Boodschappen0,1 km
Grote supermarkt0,4 km
Cafetaria0,2 km
Restaurant0,1 km
Huisarts0,3 km
Ziekenhuis1,3 km
Kinderdagverblijf0,2 km
BSO0,2 km
Alle voorzieningen in Stadhoudersplantsoen

Binnenkijken bij Conradkade 157 te Den Haag

Meer meldingen in deze omgeving

Nieuw bedrijf
December 2025
2e Schuytstraat 318, 2517TT 's-Gravenhage

Binnenkijken bij
Zaterdag 20-12-2025
Groot Hertoginnelaan 105C, 2517EE Den Haag

Binnenkijken bij
Vrijdag 12-12-2025
Cornelis de Wittlaan 590, 2582CV Den Haag

Binnenkijken bij
Vrijdag 12-12-2025
Cornelis de Wittlaan 174, 2582CM Den Haag

Faillissement
Donderdag 11-12-2025
Nicolaistraat 44, 2517TC 'S-GRAVENHAGE

Faillissement
Donderdag 11-12-2025
Nicolaïstraat 44, 2517TC 's-Gravenhage

Faillissement
Donderdag 11-12-2025
Nicolaistraat 44, 2517TC 'S-GRAVENHAGE

Faillissement
Donderdag 11-12-2025
Nicolaïstraat 44, 2517TC 's-Gravenhage

Direct een e-mail ontvangen bij nieuwe meldingen in deze regio?

Meld je dan GRATIS aan voor de Oozo Alert service voor Stadhoudersplantsoen

Instellen

Meer nieuws in Stadhoudersplantsoen

Weten hoe eenvoudig het is om af te vallen? Zonder pillen en smeersels en zonder je in het zweet te werken!
Kijk op eenvoudig-afvallen.nl

© 2012 - 2025 OOZO.nl - info@oozo.nl - Gegevens verwijderen? | Disclaimer | Privacy statement