Woning De Perponcherstraat 27D Den Haag

De Perponcherstraat 27D, 2518SN Den Haag

Ontvang updates voor Koningsplein en omgeving

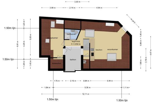
Het adres van deze woning uit 1926 is De Perponcherstraat 27D te Den Haag. Het pand heeft een oppervlakte van 34m² en heeft 2 kamers kamers waarvan 1 slaapkamers. De geschatte waarde van deze woning is € 235.000.

Bekijk alle woningen in Koningsplein en omgeving

Gegevens van Bovenwoning (appartement)

Bouwjaar
1926
Geschatte waarde
€ 235.000
Oppervlakte
34 m2
Inhoud
153 m3
Aantal kamers
2 kamers
Slaapkamers
1
Badkamers
1 badkamer
Soort bouw
Bestaande bouw
Eigendomssituatie
Volle eigendom
Ligging
Aan rustige weg en in woonwijk

Voorzieningen in de buurt

Boodschappen0,1 km
Grote supermarkt0,3 km
Cafetaria0,2 km
Restaurant0,1 km
Huisarts0,3 km
Ziekenhuis1,4 km
Kinderdagverblijf0,2 km
BSO0,3 km
Alle voorzieningen in Koningsplein en omgeving

Binnenkijken bij De Perponcherstraat 27D te Den Haag

Meer meldingen in deze omgeving

Binnenkijken bij
Dinsdag 11-11-2025
Daguerrestraat 126, 2561TX Den Haag

Binnenkijken bij
Dinsdag 11-11-2025
Laan van Meerdervoort 280, 2563AK Den Haag

Binnenkijken bij
Dinsdag 11-11-2025
Koningsplein 8, 2518JD Den Haag

Binnenkijken bij
Dinsdag 11-11-2025
Daguerrestraat 120, 2561TX Den Haag

Binnenkijken bij
Dinsdag 11-11-2025
Van Swietenstraat 145D, 2518SH Den Haag

Binnenkijken bij
Dinsdag 11-11-2025
Weimarstraat 112, 2562HB Den Haag

Binnenkijken bij
Dinsdag 11-11-2025
Van Swietenstraat 127, 2518SH Den Haag

Binnenkijken bij
Dinsdag 11-11-2025
Koningin Emmakade 132, 2518JJ Den Haag

Direct een e-mail ontvangen bij nieuwe meldingen in deze regio?

Meld je dan GRATIS aan voor de Oozo Alert service voor Koningsplein en omgeving

Instellen

Meer nieuws in Koningsplein en omgeving

Weten hoe eenvoudig het is om af te vallen? Zonder pillen en smeersels en zonder je in het zweet te werken!
Kijk op eenvoudig-afvallen.nl

© 2012 - 2025 OOZO.nl - info@oozo.nl - Gegevens verwijderen? | Disclaimer | Privacy statement