Woning Buitenhaven 12 Den Bosch

Buitenhaven 12, 5211TP Den Bosch

Ontvang updates voor Binnenstad-Centrum

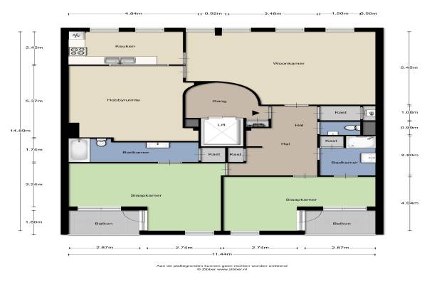
Het adres van deze woning uit 1984 is Buitenhaven 12 te Den Bosch. Het pand heeft een oppervlakte van 146m² en heeft 4 kamers kamers waarvan 3 slaapkamers. De geschatte waarde van deze woning is € 580.000.

Bekijk alle woningen in Binnenstad-Centrum

Gegevens van Portiekflat

Bouwjaar
1984
Geschatte waarde
€ 580.000
Oppervlakte
146 m2
Inhoud
430 m3
Aantal kamers
4 kamers
Slaapkamers
3
Badkamers
2 badkamers en 1 apart toilet
Soort bouw
Bestaande bouw
Ligging
In centrum

Voorzieningen in de buurt

Boodschappen0,1 km
Grote supermarkt0,3 km
Cafetaria0,1 km
Restaurant0,1 km
Huisarts0,6 km
Ziekenhuis2,4 km
Kinderdagverblijf0,6 km
BSO0,5 km
Alle voorzieningen in Binnenstad-Centrum

Binnenkijken bij Buitenhaven 12 te Den Bosch

Meer meldingen in deze omgeving

Binnenkijken bij
Zaterdag 6-12-2025
Lombardje 20, 5211HM Den Bosch

Onroerend goed
Vrijdag 5-12-2025
Nieuwstraat 79, 5211NL Den Bosch

Binnenkijken bij
Vrijdag 5-12-2025
Buitenhaven 22B, 5211TP Den Bosch

Nieuw bedrijf
December 2025
Kerkstraat 50, 5211KH 's-Hertogenbosch

Nieuw bedrijf
December 2025
Vughterstraat 141, 5211GB 's-Hertogenbosch

Nieuw bedrijf
December 2025
Vughterstraat 141, 5211GB 's-Hertogenbosch

Nieuw bedrijf
December 2025
Burgemeester Loeffplein 122, 5211RX 's-Hertogenbosch

Nieuw bedrijf
December 2025
Schapenmarkt 12C, 5211ET 's-Hertogenbosch

Direct een e-mail ontvangen bij nieuwe meldingen in deze regio?

Meld je dan GRATIS aan voor de Oozo Alert service voor Binnenstad-Centrum

Instellen

Meer nieuws in Binnenstad-Centrum

Weten hoe eenvoudig het is om af te vallen? Zonder pillen en smeersels en zonder je in het zweet te werken!
Kijk op eenvoudig-afvallen.nl

© 2012 - 2025 OOZO.nl - info@oozo.nl - Gegevens verwijderen? | Disclaimer | Privacy statement