Woning Catharinaberg 3 Den Bosch

Catharinaberg 3, 5235BL Den Bosch

Ontvang updates voor Abdijenbuurt

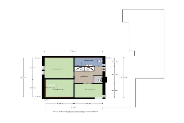
Het adres van deze woning uit 1977 is Catharinaberg 3 te Den Bosch. Het pand heeft een oppervlakte van 187m² en een perceeloppervlakte van 298m² en heeft 6 kamers kamers waarvan 4 slaapkamers. De geschatte waarde van deze woning is € 519.000.

Bekijk alle woningen in Abdijenbuurt

Gegevens van Eengezinswoning, geschakelde woning

Bouwjaar
1977
Geschatte waarde
€ 519.000
Oppervlakte
187 m2
Inhoud
658 m3
Aantal kamers
6 kamers
Slaapkamers
4
Badkamers
1 badkamer en 1 apart toilet
Soort bouw
Bestaande bouw
Eigendomssituatie
Volle eigendom
Ligging
In woonwijk
Tuin
Achtertuin en voortuin
Achtertuin
78 m² (13m diep en 6m breed)

Voorzieningen in de buurt

Boodschappen0,5 km
Grote supermarkt0,5 km
Cafetaria0,5 km
Restaurant0,4 km
Huisarts0,5 km
Ziekenhuis0,6 km
Kinderdagverblijf0,3 km
BSO0,3 km
Alle voorzieningen in Abdijenbuurt

Binnenkijken bij Catharinaberg 3 te Den Bosch

Meer meldingen in deze omgeving

Binnenkijken bij
Vrijdag 27-2-2026
Seldensate 31, 5235CA Den Bosch

Nieuw bedrijf
Februari 2026
Gageldonk 79, 5235CS 's-Hertogenbosch

Binnenkijken bij
Zaterdag 21-2-2026
Koningshoeven 7, 5235BW Den Bosch

Binnenkijken bij
Zaterdag 21-2-2026
Kloosterlaan 26, 5235BC Den Bosch

Binnenkijken bij
Zaterdag 7-2-2026
Koningshoeven 15, 5235BW Den Bosch

Nieuw bedrijf
Februari 2026
Reinekeshof 19, 5235CV 's-Hertogenbosch

Nieuw bedrijf
Januari 2026
Marathonloop 9, 5235AA 's-Hertogenbosch

Binnenkijken bij
Donderdag 22-1-2026
Kloosterlaan 57, 5235BB Den Bosch

Direct een e-mail ontvangen bij nieuwe meldingen in deze regio?

Meld je dan GRATIS aan voor de Oozo Alert service voor Abdijenbuurt

Instellen

Meer nieuws in Abdijenbuurt

Weten hoe eenvoudig het is om af te vallen? Zonder pillen en smeersels en zonder je in het zweet te werken!
Kijk op eenvoudig-afvallen.nl

© 2012 - 2026 OOZO.nl - info@oozo.nl - Gegevens verwijderen? | Disclaimer | Privacy statement