Woning Eerste Morgen 2 Den Bosch

Eerste Morgen 2, 5233NB Den Bosch

Ontvang updates voor De Rompert

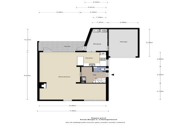
Het adres van deze woning uit 1980 is Eerste Morgen 2 te Den Bosch. Het pand heeft een oppervlakte van 165m² en een perceeloppervlakte van 260m² en heeft 6 kamers kamers waarvan 5 slaapkamers. De geschatte waarde van deze woning is € 375.000.

Bekijk alle woningen in De Rompert

Gegevens van Eengezinswoning, geschakelde 2-onder-1-kapwoning

Bouwjaar
1980
Geschatte waarde
€ 375.000
Oppervlakte
165 m2
Inhoud
550 m3
Aantal kamers
6 kamers
Slaapkamers
5
Badkamers
1 badkamer en 1 apart toilet
Soort bouw
Bestaande bouw
Eigendomssituatie
Volle eigendom
Tuin
Achtertuin en voortuin
Achtertuin
67 m² (7m diep en 9,5m breed)

Voorzieningen in de buurt

Boodschappen0,6 km
Grote supermarkt0,6 km
Cafetaria0,6 km
Restaurant0,7 km
Huisarts0,7 km
Ziekenhuis1,8 km
Kinderdagverblijf0,4 km
BSO0,5 km
Alle voorzieningen in De Rompert

Binnenkijken bij Eerste Morgen 2 te Den Bosch

Meer meldingen in deze omgeving

Nieuw bedrijf
Januari 2026
Rompertdreef 5B, 5233ED 's-Hertogenbosch

Nieuw bedrijf
Januari 2026
Rompertpassage 42, 5233AR 's-Hertogenbosch

Nieuw bedrijf
December 2025
Rompertcentrum 5A, 5233RG 's-Hertogenbosch

Nieuw bedrijf
December 2025
Rompert Park 103A, 5233RL 's-Hertogenbosch

112 melding
Zondag 14-12-2025 om 11:25
Rompertcentrum, 's-Hertogenbosch

112 melding
Zondag 14-12-2025 om 11:25
Rompertcentrum, 's-Hertogenbosch

Nieuw bedrijf
December 2025
Vijfde Rompert 44, 5233EE 's-Hertogenbosch

Binnenkijken bij
Woensdag 10-12-2025
Derde Rompert 103, 5233AH Den Bosch

Direct een e-mail ontvangen bij nieuwe meldingen in deze regio?

Meld je dan GRATIS aan voor de Oozo Alert service voor De Rompert

Instellen

Meer nieuws in De Rompert

Weten hoe eenvoudig het is om af te vallen? Zonder pillen en smeersels en zonder je in het zweet te werken!
Kijk op eenvoudig-afvallen.nl

© 2012 - 2026 OOZO.nl - info@oozo.nl - Gegevens verwijderen? | Disclaimer | Privacy statement