Woning Schutterstraat 31 Rosmalen

Schutterstraat 31, 5241TS Rosmalen

Ontvang updates voor Rosmalen-Centrum

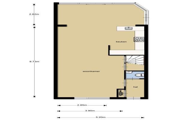
Het adres van deze woning uit 1983 is Schutterstraat 31 te Rosmalen. Het pand heeft een oppervlakte van 121m² en een perceeloppervlakte van 193m² en heeft 5 kamers kamers waarvan 4 slaapkamers. De geschatte waarde van deze woning is € 297.000.

Bekijk alle woningen in Rosmalen-Centrum

Gegevens van Eengezinswoning, hoekwoning

Bouwjaar
1983
Geschatte waarde
€ 297.000
Oppervlakte
121 m2
Inhoud
375 m3
Aantal kamers
5 kamers
Slaapkamers
4
Badkamers
1 badkamer en 1 apart toilet
Soort bouw
Bestaande bouw
Eigendomssituatie
Volle eigendom
Ligging
Aan rustige weg, in woonwijk en vrij uitzicht
Tuin
Achtertuin, voortuin en zijtuin
Achtertuin
77 m² (11m diep en 7m breed)

Voorzieningen in de buurt

Boodschappen0,2 km
Grote supermarkt0,4 km
Cafetaria0,2 km
Restaurant0,2 km
Huisarts0,5 km
Ziekenhuis1,0 km
Kinderdagverblijf0,3 km
BSO0,4 km
Alle voorzieningen in Rosmalen-Centrum

Binnenkijken bij Schutterstraat 31 te Rosmalen

Meer meldingen in deze omgeving

Nieuw bedrijf
April 2026
Striensestraat 2, 5241AX Rosmalen

112 melding
Zaterdag 18-4-2026 om 08:38
Deken van Roestellaan, Rosmalen

Binnenkijken bij
Vrijdag 10-4-2026
Brouwerijstraat 2E, 5241CS Rosmalen

Binnenkijken bij
Woensdag 1-4-2026
Burg. Nieuwenhuijzenstraat 10A, 5241TC Rosmalen

Nieuw bedrijf
Maart 2026
Raadhuisstraat 8C, 5241BL Rosmalen

Nieuw bedrijf
Maart 2026
Korte Venstraat 8, 5241CR Rosmalen

Binnenkijken bij
Zondag 22-3-2026
Venstraat 13, 5241CD Rosmalen

Binnenkijken bij
Vrijdag 13-3-2026
Schoolstraat 3H, 5241VA Rosmalen

Direct een e-mail ontvangen bij nieuwe meldingen in deze regio?

Meld je dan GRATIS aan voor de Oozo Alert service voor Rosmalen-Centrum

Instellen

Meer nieuws in Rosmalen-Centrum

Weten hoe eenvoudig het is om af te vallen? Zonder pillen en smeersels en zonder je in het zweet te werken!
Kijk op eenvoudig-afvallen.nl

© 2012 - 2026 OOZO.nl - info@oozo.nl - Gegevens verwijderen? | Disclaimer | Privacy statement