Woning Jacq Perkstraat 7 Rosmalen

Jacq Perkstraat 7, 5242GA Rosmalen

Ontvang updates voor Molenhoek

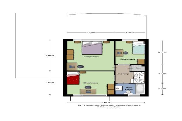
Het adres van deze woning uit 1974 is Jacq Perkstraat 7 te Rosmalen. Het pand heeft 5 kamers kamers waarvan 4 slaapkamers. De geschatte waarde van deze woning is € 425.000.

Bekijk alle woningen in Molenhoek

Gegevens van Eengezinswoning, 2-onder-1-kapwoning

Bouwjaar
1974
Geschatte waarde
€ 425.000
Oppervlakte
0 m2
Inhoud
649 m3
Aantal kamers
5 kamers
Slaapkamers
4
Badkamers
2 badkamers en 1 apart toilet
Soort bouw
Bestaande bouw
Eigendomssituatie
Volle eigendom
Ligging
Aan rustige weg en in woonwijk
Tuin
Achtertuin en voortuin
Achtertuin
168 m² (16m diep en 10,5m breed)

Voorzieningen in de buurt

Boodschappen0,5 km
Grote supermarkt0,6 km
Cafetaria0,6 km
Restaurant0,5 km
Huisarts1,2 km
Ziekenhuis1,4 km
Kinderdagverblijf0,5 km
BSO0,5 km
Alle voorzieningen in Molenhoek

Binnenkijken bij Jacq Perkstraat 7 te Rosmalen

Meer meldingen in deze omgeving

Nieuw bedrijf
November 2025
Molenstraat 18, 5242HA Rosmalen

Nieuw bedrijf
November 2025
Burgemeester Mazairaclaan 8, 5242AV Rosmalen

Nieuw bedrijf
November 2025
Burgemeester Mazairaclaan 8, 5242AV Rosmalen

Nieuw bedrijf
November 2025
Burgemeester Mazairaclaan 8, 5242AV Rosmalen

Nieuw bedrijf
November 2025
Burgemeester Mazairaclaan 8, 5242AV Rosmalen

Binnenkijken bij
Zondag 16-11-2025
Kennedylaan 10, 5242BB Rosmalen

112 melding
Zaterdag 15-11-2025 om 23:24
Oude Baan, 5244JA Rosmalen

112 melding
Zaterdag 15-11-2025 om 23:06
Oude Baan, 5244JA Rosmalen

Direct een e-mail ontvangen bij nieuwe meldingen in deze regio?

Meld je dan GRATIS aan voor de Oozo Alert service voor Molenhoek

Instellen

Meer nieuws in Molenhoek

Weten hoe eenvoudig het is om af te vallen? Zonder pillen en smeersels en zonder je in het zweet te werken!
Kijk op eenvoudig-afvallen.nl

© 2012 - 2025 OOZO.nl - info@oozo.nl - Gegevens verwijderen? | Disclaimer | Privacy statement